推奨利用人数
30人~39人
【成約済み】澤田麹町ビル 2階
- 所在地:東京都千代田区麹町1丁目10番5号
- 交通:東京メトロ半蔵門線「半蔵門」駅徒歩2分
- 交通2:東京メトロ有楽町線「麹町」駅徒歩7分
- 交通3:東京メトロ南北線「永田町」駅徒歩12分
| 賃料:相談 (税別) | 管理費:相談 (税別) |
| 敷金:12ヶ月- | 礼金:0ヶ月 |
| 面積:224.5m² | 所在階:地上2階 |
| 間取り:事務所 | 築年月:1990年11月 |
| 賃料/管理費 | 相談 (税別)/相談 (税別) | フリーレント | 0ヶ月 |
|---|---|---|---|
| 敷金/礼金 | 12ヶ月/0ヶ月 | 内見・入居 | 内見可 |
| 間取り | 事務所 | 面積 | 224.5m² |
| 所在階 | 地上2階 | 最大スペース | |
| 住所 | 東京都千代田区麹町1丁目10番5号 | 最寄駅 | 東京メトロ半蔵門線「半蔵門」駅徒歩2分 東京メトロ有楽町線「麹町」駅徒歩7分 東京メトロ南北線「永田町」駅徒歩12分 |
| その他交通 | 築年月 | 1990年11月 | |
| 方角 | 構造 | 鉄骨鉄筋コンクリート造(SRC造) 7階建 | |
| 契約期間 | その他 | 契約形態 | 定期借家 |
| 償却 | 0ヶ月 | 設備 | エレベーター |
| 更新料 | 更新日 | 2025年09月11日 | |
| 備考 | |||



お問い合わせの際は、「部屋No.49293」とお伝えください。





























1990年竣工、グレーの石張りの外観のオフィスです。新耐震基準をクリアしています。新宿通りから1本入った場所に立地しており、比較的落ち着いたオフィス街のなかにあります。
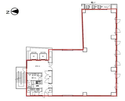
EVは2基、1フロア1テナント利用のオフィスはL字型の形状で、室内には余計な柱がありませんので効率よくレイアウトしていただくことができます。EVホールに男女別のトイレと給湯室があります。
新宿通りや駅前には飲食店やコンビニも多くあり利便性も良好です。