推奨利用人数
20人~24人
【成約済み】上地ビル 6階
- 所在地:東京都港区西新橋3丁目15番3号
- 交通:東京メトロ銀座線「虎ノ門」駅徒歩6分
- 交通2:都営三田線「御成門」駅徒歩6分
- 交通3:東京メトロ日比谷線「神谷町」駅徒歩6分
| 賃料:-- (税別) | 管理費:0円 (税別) |
| 敷金:6ヶ月- | 礼金:1ヶ月 |
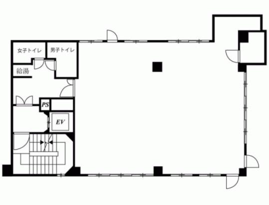
| 面積:153.98m² | 所在階:地上6階 |
| 間取り:事務所 | 築年月:1970年10月 |
| 賃料/管理費 | -- (税別)/0円 (税別) | フリーレント | 0ヶ月 |
|---|---|---|---|
| 敷金/礼金 | 6ヶ月/1ヶ月 | 内見・入居 | 内見可 |
| 間取り | 事務所 | 面積 | 153.98m² |
| 所在階 | 地上6階 | 最大スペース | |
| 住所 | 東京都港区西新橋3丁目15番3号 | 最寄駅 | 東京メトロ銀座線「虎ノ門」駅徒歩6分 都営三田線「御成門」駅徒歩6分 東京メトロ日比谷線「神谷町」駅徒歩6分 |
| その他交通 | 築年月 | 1970年10月 | |
| 方角 | 構造 | 鉄筋コンクリート造(RC造) 7階建 | |
| 契約期間 | 2年間 | 契約形態 | 定期借家 |
| 償却 | 30% | 設備 | エレベーター |
| 更新料 | 0ヶ月 | 更新日 | 2025年09月11日 |
| 備考 | ・EV6階まで | ||



お問い合わせの際は、「部屋No.49304」とお伝えください。





























1970年竣工の歴史のあるオフィスビル、エントランスや共用部はしっかりとリニューアル工事をされていますので気持ちよくご利用いただけます。白い三角屋根が特徴的な外観の建物です。
共用部に水回りや男女別のトイレがありますので、貸室内は効率よくレイアウトすることができます。セキュリティも機械警備を導入済みですので安心して24時間ご利用可能です。
愛宕通りから少し入った場所に立地しており、周辺は比較的落ち着いたエリア。すぐそばにコンビニがありますので重宝します。