推奨利用人数
7人~8人
【成約済み】河西ビル 3階
- 所在地:東京都新宿区西新宿1丁目12番12号
- 交通:JR山手線「新宿」駅徒歩3分
- 交通2:都営大江戸線「都庁前」駅徒歩8分
- 交通3:―
| 賃料:-- (税別) | 管理費:0円 (税別) |
| 敷金:10ヶ月- | 礼金:1ヶ月 |
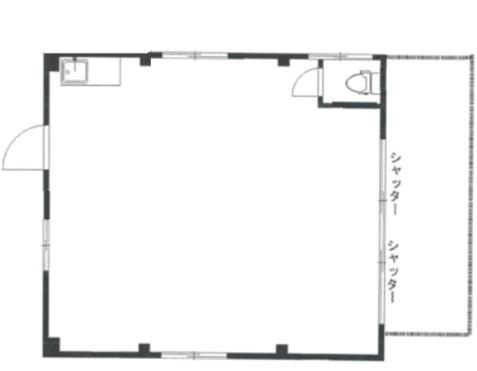
| 面積:44.89m² | 所在階:地上3階 |
| 間取り:事務所 | 築年月:1965年01月 |
| 賃料/管理費 | -- (税別)/0円 (税別) | フリーレント | 0ヶ月 |
|---|---|---|---|
| 敷金/礼金 | 10ヶ月/1ヶ月 | 内見・入居 | 相談 |
| 間取り | 事務所 | 面積 | 44.89m² |
| 所在階 | 地上3階 | 最大スペース | |
| 住所 | 東京都新宿区西新宿1丁目12番12号 | 最寄駅 | JR山手線「新宿」駅徒歩3分 都営大江戸線「都庁前」駅徒歩8分 ― |
| その他交通 | 築年月 | 1965年01月 | |
| 方角 | 構造 | 鉄筋コンクリート造(RC造) 7階建 | |
| 契約期間 | 3年間 | 契約形態 | 定期借家 |
| 償却 | 1ヶ月 | 設備 | エレベーター |
| 更新料 | 1ヶ月 | 更新日 | 2025年09月11日 |
| 備考 | |||
| その他費用 | ・看板料別途 | ||



お問い合わせの際は、「部屋No.49336」とお伝えください。





























1965年竣工の歴史のあるオフィスです。新宿西口の飲食店の多い繁華街の中の建物です。
1フロア1テナント利用、室内に専用のトイレと水回りがあり使い勝手も良好です。
周辺は飲食店や各種店舗が多い賑やかなエリア、郵便局も近くにあります!複数の路線が利用できる「新宿」駅徒歩3分ですので交通アクセスも良好です!
事務所のほか、サービス店舗としてのご利用もご相談可能ですので、ぜひご検討ください。