推奨利用人数
9人~10人
【成約済み】アールデコ御茶ノ水 4階
- 所在地:東京都文京区湯島3丁目1番5号
- 交通:JR中央線「御茶ノ水」駅徒歩5分
- 交通2:東京メトロ千代田線「湯島」駅徒歩5分
- 交通3:東京メトロ銀座線「末広町」駅徒歩6分
| 賃料:-- (税別) | 管理費:10,000円 (税別) |
| 敷金:4ヶ月- | 礼金:0ヶ月 |
| 面積:64.66m² | 所在階:地上4階 |
| 間取り:事務所 | 築年月:1973年08月 |
| 賃料/管理費 | -- (税別)/10,000円 (税別) | フリーレント | 0ヶ月 |
|---|---|---|---|
| 敷金/礼金 | 4ヶ月/0ヶ月 | 内見・入居 | 内見可 |
| 間取り | 事務所 | 面積 | 64.66m² |
| 所在階 | 地上4階 | 最大スペース | |
| 住所 | 東京都文京区湯島3丁目1番5号 | 最寄駅 | JR中央線「御茶ノ水」駅徒歩5分 東京メトロ千代田線「湯島」駅徒歩5分 東京メトロ銀座線「末広町」駅徒歩6分 |
| その他交通 | JR山手線「秋葉原」駅13分 | 築年月 | 1973年08月 |
| 方角 | 構造 | 鉄骨鉄筋コンクリート造(SRC造) 8階建 | |
| 契約期間 | 2年間 | 契約形態 | 普通借家 |
| 償却 | 1ヶ月 | 設備 | エレベーター |
| 更新料 | 1ヶ月 | 更新日 | 2025年09月11日 |
| 備考 | |||
| その他費用 | ・電気使用料:13,000円/月(税別) ・水道料金:4,000円/月(税別) |
||



お問い合わせの際は、「部屋No.49353」とお伝えください。





























1973年竣工、白い吹き付けの外観の建物です。築年数は経ていますが、内外装リニューアル工事を実施していますので気持ちよくお使いいただけます。
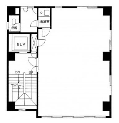
EV1基、1フロア1テナント利用で室内に給湯設備と専用のトイレがございます。
最寄の御茶ノ水駅のほか、末広町駅や湯島駅へも徒歩6分ほどでアクセス可能です!