推奨利用人数
7人~8人
【成約済み】富田屋ビル 7C号室
- 所在地:東京都港区虎ノ門1丁目8番7号
- 交通:東京メトロ銀座線「虎ノ門」駅徒歩2分
- 交通2:都営三田線「内幸町」駅徒歩5分
- 交通3:東京メトロ丸の内線「霞ケ関」駅徒歩6分
| 賃料:-- (税別) | 管理費:0円 (税別) |
| 敷金:8ヶ月- | 礼金:0ヶ月 |
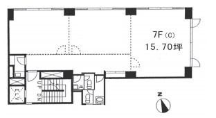
| 面積:51.9m² | 所在階:地上7階 |
| 間取り:事務所 | 築年月:1974年04月 |
| 賃料/管理費 | -- (税別)/0円 (税別) | フリーレント | 0ヶ月 |
|---|---|---|---|
| 敷金/礼金 | 8ヶ月/0ヶ月 | 内見・入居 | |
| 間取り | 事務所 | 面積 | 51.9m² |
| 所在階 | 地上7階 | 最大スペース | |
| 住所 | 東京都港区虎ノ門1丁目8番7号 | 最寄駅 | 東京メトロ銀座線「虎ノ門」駅徒歩2分 都営三田線「内幸町」駅徒歩5分 東京メトロ丸の内線「霞ケ関」駅徒歩6分 |
| その他交通 | 築年月 | 1974年04月 | |
| 方角 | 構造 | 鉄骨鉄筋コンクリート造(SRC造) 9階建 | |
| 契約期間 | その他 | 契約形態 | 定期借家 |
| 償却 | 2ヶ月 | 設備 | エレベーター |
| 更新料 | 1ヶ月 | 更新日 | 2025年09月11日 |
| 備考 | |||



お問い合わせの際は、「部屋No.49359」とお伝えください。





























1974年竣工の「富田屋ビル」は、愛宕下通り沿い角地に立地、1階には飲食店があり目印になります。
オフィス用に独立エントランスがあります。
オフィスフロアには共用部に男女別トイレ、給湯室があり、貸室内は効率よレイアウトすることができます。セキュリティは機械式警備完備で安心してご利用いただけます。
周辺は飲食店の多いエリア、徒歩4分ほどで虎ノ門ヒルズも利用可能です。