推奨利用人数
15人~19人
【成約済み】WACROSS NINGYOCHO(旧称:KOIビル) 7階
- 所在地:東京都中央区日本橋蛎殻町1丁目12番7号
- 交通:東京メトロ日比谷線「人形町」駅徒歩2分
- 交通2:東京メトロ半蔵門線「水天宮前」駅徒歩4分
- 交通3:東京メトロ東西線「茅場町」駅徒歩10分
| 賃料:-- (税別) | 管理費:0円 (税別) |
| 敷金:6ヶ月- | 礼金:0ヶ月 |
| 面積:109.75m² | 所在階:地上7階 |
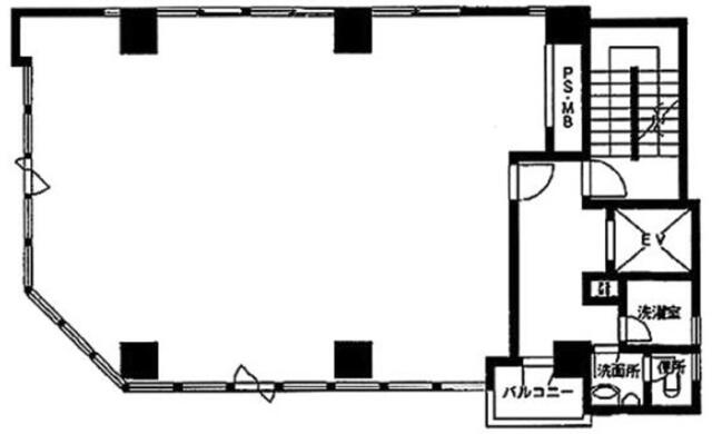
| 間取り:事務所 | 築年月:1984年08月 |
| 賃料/管理費 | -- (税別)/0円 (税別) | フリーレント | 0ヶ月 |
|---|---|---|---|
| 敷金/礼金 | 6ヶ月/0ヶ月 | 内見・入居 | 内見可 |
| 間取り | 事務所 | 面積 | 109.75m² |
| 所在階 | 地上7階 | 最大スペース | |
| 住所 | 東京都中央区日本橋蛎殻町1丁目12番7号 | 最寄駅 | 東京メトロ日比谷線「人形町」駅徒歩2分 東京メトロ半蔵門線「水天宮前」駅徒歩4分 東京メトロ東西線「茅場町」駅徒歩10分 |
| その他交通 | 築年月 | 1984年08月 | |
| 方角 | 構造 | 鉄骨鉄筋コンクリート造(SRC造) 8階建 | |
| 契約期間 | 2年間 | 契約形態 | 普通借家 |
| 償却 | 0ヶ月 | 設備 | エレベーター , OAフロア |
| 更新料 | 1ヶ月 | 更新日 | 2025年09月11日 |
| 備考 | |||
| その他費用 | ・指定保証会社加入要 | ||



お問い合わせの際は、「部屋No.49385」とお伝えください。





























1984年竣工。角地に立地しており、道路側の大きな窓が視認性を高めています。
2018年11月リニューアル工事を実施し、会議室付のセットアップオフィスへと生まれ変わりました。
1フロア1テナント利用のオフィス、室外に男女別のトイレとパントリーを設置し使い勝手も良好。
室内には会議室を設置し内装コストを削減しすぐにご利用いただけるオフィスです。
セキュリティは機械警備を完備、24時間安心してご利用いただけます。
周辺は飲食店も多く、コンビニや郵便局も近いので便利です!