推奨利用人数
30人~39人
【成約済み】ザイマックス東上野ビル 3階
- 所在地:東京都台東区東浅草1丁目11番4号
- 交通:都営大江戸線「新御徒町」駅徒歩3分
- 交通2:JR山手線「御徒町」駅徒歩4分
- 交通3:東京メトロ日比谷線「仲御徒町」駅徒歩4分
| 賃料:相談 (税別) | 管理費:相談 (税別) |
| 敷金:12ヶ月- | 礼金:0ヶ月 |
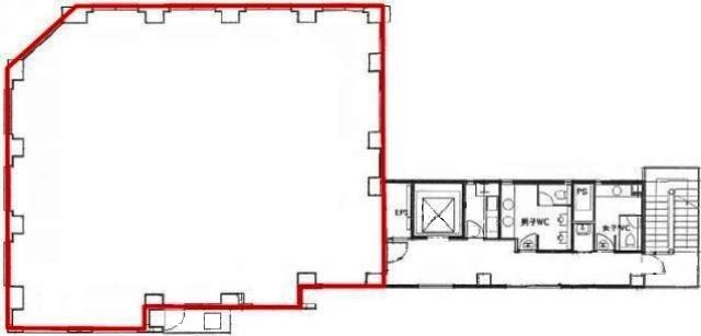
| 面積:226.21m² | 所在階:地上3階 |
| 間取り:事務所 | 築年月:1999年01月 |
| 賃料/管理費 | 相談 (税別)/相談 (税別) | フリーレント | 0ヶ月 |
|---|---|---|---|
| 敷金/礼金 | 12ヶ月/0ヶ月 | 内見・入居 | 相談 |
| 間取り | 事務所 | 面積 | 226.21m² |
| 所在階 | 地上3階 | 最大スペース | |
| 住所 | 東京都台東区東浅草1丁目11番4号 | 最寄駅 | 都営大江戸線「新御徒町」駅徒歩3分 JR山手線「御徒町」駅徒歩4分 東京メトロ日比谷線「仲御徒町」駅徒歩4分 |
| その他交通 | 東京メトロ銀座線「上野広小路」駅徒歩6分 | 築年月 | 1999年01月 |
| 方角 | 構造 | 鉄骨鉄筋コンクリート造(SRC造) 8階建 | |
| 契約期間 | 2年間 | 契約形態 | 普通借家 |
| 償却 | 0ヶ月 | 設備 | エレベーター , OAフロア |
| 更新料 | 更新日 | 2025年09月11日 | |
| 備考 | |||



お問い合わせの際は、「部屋No.49422」とお伝えください。





























1999年竣工、白い外壁の清潔感のある建物です。角地に立地していて1階にはコンビニエンスストアがありますので目印になります。
基準となるオフィスフロアは約70坪、共用部に男女別のトイレと共用部がありますので貸室内は効率よくレイアウトすることが可能です。個別空調・OA床など設備面も充実しています。
最寄駅は新御徒町駅、そのほか御徒町駅や仲御徒町駅など多数の駅と路線が利用可能ですのでアクセスも良好です!