推奨利用人数
40人以上
【成約済み】西村ビル(学芸大学) 1棟
- 所在地:東京都目黒区中央町2丁目8番15号
- 交通:東急東横線「学芸大学」駅徒歩10分
- 交通2:東急東横線「祐天寺」駅徒歩12分
- 交通3:―
| 賃料:-- (税別) | 管理費:0円 (税別) |
| 敷金:6ヶ月- | 礼金:1ヶ月 |
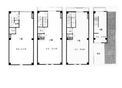
| 面積:298.62m² | 所在階:地上1階 |
| 間取り:事務所 | 築年月:1999年01月 |
| 賃料/管理費 | -- (税別)/0円 (税別) | フリーレント | 0ヶ月 |
|---|---|---|---|
| 敷金/礼金 | 6ヶ月/1ヶ月 | 内見・入居 | 相談 |
| 間取り | 事務所 | 面積 | 298.62m² |
| 所在階 | 地上1階 | 最大スペース | |
| 住所 | 東京都目黒区中央町2丁目8番15号 | 最寄駅 | 東急東横線「学芸大学」駅徒歩10分 東急東横線「祐天寺」駅徒歩12分 ― |
| その他交通 | 築年月 | 1999年01月 | |
| 方角 | 構造 | 鉄骨構造(S造) 4階建 | |
| 契約期間 | 2年間 | 契約形態 | 定期借家 |
| 償却 | 20ヶ月 | 設備 | |
| 更新料 | 更新日 | 2025年09月11日 | |
| 備考 | |||



お問い合わせの際は、「部屋No.49431」とお伝えください。





























1990年竣工、落ち着いた茶色のタイル張りの外観の建物です。新耐震基準をクリアしています。
4階建ての建物、トイレが2箇所ありますので、男女別のトイレとしてご利用することも可能です。ダムウェーター(荷物用小型エレベーター)を完備していますので、作業所などの利用にも適しています。
敷地内全面道路には駐車者スペースもございますので、クルマの置き場所にも困りません。