推奨利用人数
20人~24人
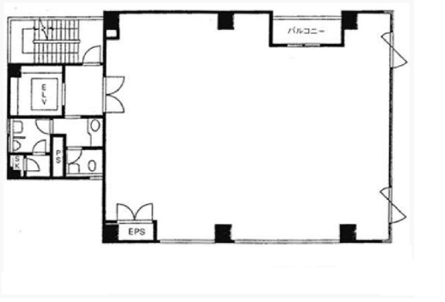
【成約済み】赤坂伊藤ビル 4階
- 所在地:東京都港区赤坂7丁目10番9号
- 交通:東京メトロ千代田線「赤坂」駅徒歩5分
- 交通2:都営大江戸線「六本木」駅徒歩10分
- 交通3:東京メトロ銀座線「青山一丁目」駅徒歩13分
| 賃料:-- (税別) | 管理費:87,400円 (税別) |
| 敷金:6ヶ月- | 礼金:1ヶ月 |
| 面積:144.46m² | 所在階:地上4階 |
| 間取り:事務所 | 築年月:1992年09月 |
| 賃料/管理費 | -- (税別)/87,400円 (税別) | フリーレント | 0ヶ月 |
|---|---|---|---|
| 敷金/礼金 | 6ヶ月/1ヶ月 | 内見・入居 | 内見可 |
| 間取り | 事務所 | 面積 | 144.46m² |
| 所在階 | 地上4階 | 最大スペース | |
| 住所 | 東京都港区赤坂7丁目10番9号 | 最寄駅 | 東京メトロ千代田線「赤坂」駅徒歩5分 都営大江戸線「六本木」駅徒歩10分 東京メトロ銀座線「青山一丁目」駅徒歩13分 |
| その他交通 | 築年月 | 1992年09月 | |
| 方角 | 構造 | 鉄筋コンクリート造(RC造) 8階建 | |
| 契約期間 | その他 | 契約形態 | |
| 償却 | 1ヶ月 | 設備 | エレベーター |
| 更新料 | 1ヶ月 | 更新日 | 2025年09月11日 |
| 備考 | |||



お問い合わせの際は、「部屋No.49440」とお伝えください。





























1992年竣工、高級感のあるグレーの石張りの外観の建物、大きな窓が印象的な外観です。1階に飲食店があり目印にもなります。心耐震基準に適合した建物です。
1フロア1テナント利用、室外に男女別のトイレと給湯室があり、余計な柱もないので室内は効率よくレイアウトすることが可能です。セキュリティは機械警備を完備しています。
赤坂通りは飲食店やコンビニが多くあり、ランチ時には重宝しそうです。
最寄の赤坂駅のほか、乃木坂駅も徒歩6分で利用可能。足を伸ばせば六本木駅や青山一丁目駅も徒歩13分ほどでアクセスできます!