推奨利用人数
40人以上
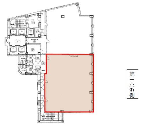
【成約済み】芝二丁目ビル 3階
- 所在地:東京都港区芝2丁目28番8号
- 交通:都営三田線「三田」駅徒歩7分
- 交通2:JR山手線「浜松町」駅徒歩9分
- 交通3:都営大江戸線「大門」駅徒歩9分
| 賃料:相談 (税別) | 管理費:相談 (税別) |
| 敷金:12ヶ月- | 礼金:0ヶ月 |
| 面積:312.53m² | 所在階:地上3階 |
| 間取り:事務所 | 築年月:1994年09月 |
| 賃料/管理費 | 相談 (税別)/相談 (税別) | フリーレント | 相談ヶ月 |
|---|---|---|---|
| 敷金/礼金 | 12ヶ月/0ヶ月 | 内見・入居 | 内見可 |
| 間取り | 事務所 | 面積 | 312.53m² |
| 所在階 | 地上3階 | 最大スペース | |
| 住所 | 東京都港区芝2丁目28番8号 | 最寄駅 | 都営三田線「三田」駅徒歩7分 JR山手線「浜松町」駅徒歩9分 都営大江戸線「大門」駅徒歩9分 |
| その他交通 | ゆりかもめ「日の出」駅11分 | 築年月 | 1994年09月 |
| 方角 | 構造 | 鉄骨構造(S造)&一部鉄骨鉄筋(SRC造) 14階建 | |
| 契約期間 | その他 | 契約形態 | |
| 償却 | 0ヶ月 | 設備 | エレベーター , OAフロア |
| 更新料 | 0ヶ月 | 更新日 | 2025年09月11日 |
| 備考 | |||



お問い合わせの際は、「部屋No.49455」とお伝えください。





























複数路線利用可能で主要エリアへのアクセス良好
天井高2,800㎜(基準階)で明るく開放的な空間を実現
個別空調
有人管理(平日8時~19時)+機械警備
エントランス:平日8時~19時 土日祝9時~18時