推奨利用人数
25人~29人
田町ハラビル 8階
- 所在地:東京都港区芝4丁目11番5号
- 交通:都営浅草線「三田」駅徒歩3分
- 交通2:JR山手線「田町」駅徒歩5分
- 交通3:都営三田線「芝公園」駅徒歩8分
| 賃料:相談 (税別) | 管理費:相談 (税別) |
| 敷金:12ヶ月- | 礼金:0ヶ月 |
| 面積:194.51m² | 所在階:地上8階 |
| 間取り:事務所 | 築年月:1993年01月 |
| 賃料/管理費 | 相談 (税別)/相談 (税別) | フリーレント | 0ヶ月 |
|---|---|---|---|
| 敷金/礼金 | 12ヶ月/0ヶ月 | 内見・入居 | 相談 |
| 間取り | 事務所 | 面積 | 194.51m² |
| 所在階 | 地上8階 | 最大スペース | |
| 住所 | 東京都港区芝4丁目11番5号 | 最寄駅 | 都営浅草線「三田」駅徒歩3分 JR山手線「田町」駅徒歩5分 都営三田線「芝公園」駅徒歩8分 |
| その他交通 | 築年月 | 1993年01月 | |
| 方角 | 構造 | 鉄骨構造(S造) 9階建 | |
| 契約期間 | その他 | 契約形態 | |
| 償却 | 0ヶ月 | 設備 | エレベーター , OAフロア |
| 更新料 | 更新日 | 2025年09月11日 | |
| 備考 |
・開館時間 平日 7:00-20:00 土日祝 閉館 時間外は通用口から機械警備カード操作で入館可能 |
||



お問い合わせの際は、「部屋No.49474」とお伝えください。





























1993年竣工、御影石張りの外観の高級感のある賃貸オフィスです。新耐震基準をクリアしています。
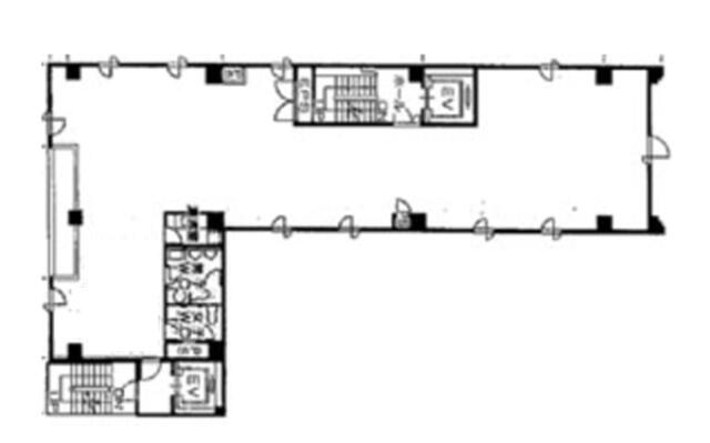
建物にはEV2基、基準となるフロアは約60坪でL字型の形状をしています。1フロア1テナント利用で室内には男女別のトイレと給湯室があり使い勝手も良好です。セキュリティは機械警備を完備しており、安心してご利用いただけます。
第一京浜沿いに立地し、日比谷通り・旧海岸通りにも程近くアクセスも良好。周辺にはコンビニや郵便局もあり便利です。駅周辺にはランチスポットも多数ございます。