推奨利用人数
20人~24人
【成約済み】CANAL GATE SHIBAURA(旧:平野ビル) 8階
- 所在地:東京都港区芝浦4丁目12番38号
- 交通:JR山手線「田町」駅徒歩8分
- 交通2:都営三田線「三田」駅徒歩9分
- 交通3:ゆりかもめ「芝浦ふ頭」駅徒歩15分
| 賃料:-- (税別) | 管理費:0円 (税別) |
| 敷金:10ヶ月- | 礼金:0ヶ月 |
| 面積:140.39m² | 所在階:地上8階 |
| 間取り:事務所 | 築年月:1989年03月 |
| 賃料/管理費 | -- (税別)/0円 (税別) | フリーレント | 0ヶ月 |
|---|---|---|---|
| 敷金/礼金 | 10ヶ月/0ヶ月 | 内見・入居 | 相談 (2021年6月10日入居可予定) |
| 間取り | 事務所 | 面積 | 140.39m² |
| 所在階 | 地上8階 | 最大スペース | |
| 住所 | 東京都港区芝浦4丁目12番38号 | 最寄駅 | JR山手線「田町」駅徒歩8分 都営三田線「三田」駅徒歩9分 ゆりかもめ「芝浦ふ頭」駅徒歩15分 |
| その他交通 | 築年月 | 1989年03月 | |
| 方角 | 構造 | 鉄骨鉄筋コンクリート造(SRC造) 8階建 | |
| 契約期間 | 2年間 | 契約形態 | 普通借家 |
| 償却 | 0ヶ月 | 設備 | エレベーター , OAフロア |
| 更新料 | 0ヶ月 | 更新日 | 2025年09月11日 |
| 備考 | ・2019年3月末、貸室内・外装リニューアル | ||
| その他費用 | ・保証会社加入必須 | ||



お問い合わせの際は、「部屋No.49527」とお伝えください。





























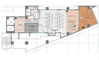
1989年竣工、高級感ある茶色のパネル張りの外観の建物です。2019年3月、会議室やリフレッシュスペースを各階に備えたリノベーションオフィスへと生まれ変わりました。
1フロア1テナント利用のオフィスには、各室に男女別トイレと会議室を完備。裏手の運河を望む開放的なオフィスへとリノベーション。セキュリティは機械警備を完備していますので安心してご利用いただけます。
旧海岸通り沿いから1本入った場所に立地、周辺はオフィス街、郵便局や公園も近くにありますので何かと便利です。飲食店は少なめですが、大きな通り沿いにコンビニエンスストアがあります。