推奨利用人数
15人~19人
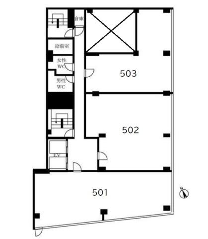
【成約済み】新宿ロイヤルビル 503号室
- 所在地:東京都新宿区西新宿7丁目21番1号
- 交通:JR山手線「新宿」駅徒歩7分
- 交通2:東京メトロ丸の内線「西新宿」駅徒歩2分
- 交通3:都営大江戸線「新宿西口」駅徒歩5分
| 賃料:-- (税別) | 管理費:128,520円 (税別) |
| 敷金:10ヶ月- | 礼金:0ヶ月 |
| 面積:118.02m² | 所在階:地上5階 |
| 間取り:事務所 | 築年月:1971年12月 |
| 賃料/管理費 | -- (税別)/128,520円 (税別) | フリーレント | 0ヶ月 |
|---|---|---|---|
| 敷金/礼金 | 10ヶ月/0ヶ月 | 内見・入居 | 内見可 |
| 間取り | 事務所 | 面積 | 118.02m² |
| 所在階 | 地上5階 | 最大スペース | |
| 住所 | 東京都新宿区西新宿7丁目21番1号 | 最寄駅 | JR山手線「新宿」駅徒歩7分 東京メトロ丸の内線「西新宿」駅徒歩2分 都営大江戸線「新宿西口」駅徒歩5分 |
| その他交通 | 築年月 | 1971年12月 | |
| 方角 | 構造 | 鉄骨鉄筋コンクリート造(SRC造) 9階建 | |
| 契約期間 | 5年間 | 契約形態 | 定期借家 |
| 償却 | 2ヶ月 | 設備 | エレベーター , OAフロア |
| 更新料 | 更新日 | 2025年09月11日 | |
| 備考 | |||



お問い合わせの際は、「部屋No.49530」とお伝えください。





























1971年竣工、青梅街道沿いに立地する重厚感のある建物です。1階には銀行があり目印になります。
建物にはEV2基、共用部に男女別のトイレと給湯室がありますので、貸室内は効率よくレイアウトすることが可能です。
周辺は大型のオフィスビルが立ち並ぶ西新宿エリア、飲食店や銀行、コンビニも多くありますので利便性も良好。
2014年3月 耐震補強工事実施済みです。