推奨利用人数
15人~19人
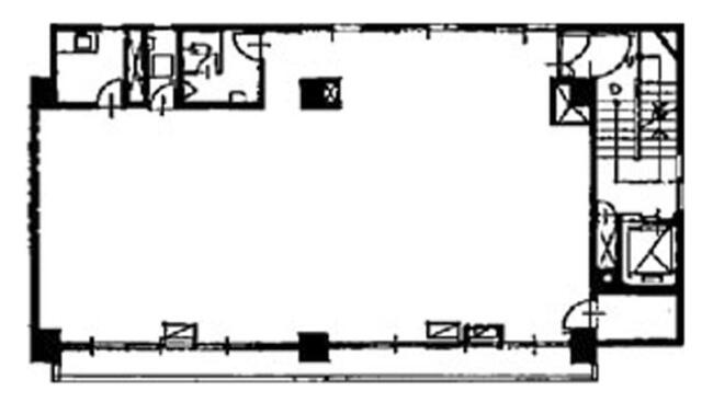
【成約済み】ハイツニュー平河 5階
- 所在地:東京都千代田区平河町2丁目12番18号
- 交通:東京メトロ半蔵門線「半蔵門」駅徒歩3分
- 交通2:東京メトロ南北線「永田町」駅徒歩5分
- 交通3:東京メトロ有楽町線「麹町」駅徒歩7分
| 賃料:-- (税別) | 管理費:0円 (税別) |
| 敷金:6ヶ月- | 礼金:0ヶ月 |
| 面積:126.91m² | 所在階:地上5階 |
| 間取り:事務所 | 築年月:1972年05月 |
| 賃料/管理費 | -- (税別)/0円 (税別) | フリーレント | 0ヶ月 |
|---|---|---|---|
| 敷金/礼金 | 6ヶ月/0ヶ月 | 内見・入居 | 内見可 |
| 間取り | 事務所 | 面積 | 126.91m² |
| 所在階 | 地上5階 | 最大スペース | |
| 住所 | 東京都千代田区平河町2丁目12番18号 | 最寄駅 | 東京メトロ半蔵門線「半蔵門」駅徒歩3分 東京メトロ南北線「永田町」駅徒歩5分 東京メトロ有楽町線「麹町」駅徒歩7分 |
| その他交通 | 築年月 | 1972年05月 | |
| 方角 | 構造 | 鉄骨鉄筋コンクリート造(SRC造) 10階建 | |
| 契約期間 | 2年間 | 契約形態 | 定期借家 |
| 償却 | 2ヶ月 | 設備 | エレベーター |
| 更新料 | 更新日 | 2025年09月11日 | |
| 備考 | ・ペット・ピアノ不可 | ||



お問い合わせの際は、「部屋No.49535」とお伝えください。





























1972年竣工、1階にガソリンスタンドがあるマンションで視認性も良好です。新宿通り方面へ向かうとコンビニや飲食店があり便利です。
お部屋によって、住居仕様、事務所仕様とございますのでお問い合わせください。
全室バルコニーが東側です!光ファイバーがMDFまで導入済みです。