推奨利用人数
7人~8人
【成約済み】南青山ビル(南青山2丁目) 5階
- 所在地:東京都港区南青山2丁目11番13号
- 交通:東京メトロ半蔵門線「青山一丁目」駅徒歩3分
- 交通2:東京メトロ銀座線「外苑前」駅徒歩3分
- 交通3:東京メトロ千代田線「乃木坂」駅徒歩13分
| 賃料:-- (税別) | 管理費:48,270円 (税別) |
| 敷金:4ヶ月- | 礼金:0ヶ月 |
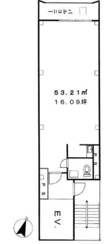
| 面積:53.21m² | 所在階:地上5階 |
| 間取り:事務所 | 築年月:1982年06月 |
| 賃料/管理費 | -- (税別)/48,270円 (税別) | フリーレント | 0ヶ月 |
|---|---|---|---|
| 敷金/礼金 | 4ヶ月/0ヶ月 | 内見・入居 | 内見可 |
| 間取り | 事務所 | 面積 | 53.21m² |
| 所在階 | 地上5階 | 最大スペース | |
| 住所 | 東京都港区南青山2丁目11番13号 | 最寄駅 | 東京メトロ半蔵門線「青山一丁目」駅徒歩3分 東京メトロ銀座線「外苑前」駅徒歩3分 東京メトロ千代田線「乃木坂」駅徒歩13分 |
| その他交通 | 築年月 | 1982年06月 | |
| 方角 | 構造 | 鉄骨構造(S造) 8階建 | |
| 契約期間 | 2年間 | 契約形態 | |
| 償却 | 0ヶ月 | 設備 | エレベーター |
| 更新料 | 0ヶ月 | 更新日 | 2025年09月11日 |
| 備考 | |||
| その他費用 | ・保証会社加入必須:初回保証料は総賃料の1ヶ月分、1年毎に10% | ||



お問い合わせの際は、「部屋No.49556」とお伝えください。





























スタイリッシュなエントランスが印象的な8階建ての賃貸事務所です
周辺にはコンビニや飲食店、銀行があり便利
人気の1フロア1テナント、24時間利用可、土日・祝日利用可です