推奨利用人数
15人~19人
【成約済み】スギコビル 5階
- 所在地:東京都中央区八丁堀3丁目3番2号
- 交通:都営浅草線「宝町」駅徒歩2分
- 交通2:東京メトロ日比谷線「八丁堀」駅徒歩4分
- 交通3:東京メトロ有楽町線「新富町」駅徒歩9分
| 賃料:相談 (税別) | 管理費:相談 (税別) |
| 敷金:10ヶ月- | 礼金:0ヶ月 |
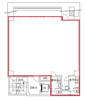
| 面積:101.52m² | 所在階:地上5階 |
| 間取り:事務所 | 築年月:1986年10月 |
| 賃料/管理費 | 相談 (税別)/相談 (税別) | フリーレント | 0ヶ月 |
|---|---|---|---|
| 敷金/礼金 | 10ヶ月/0ヶ月 | 内見・入居 | 内見可 |
| 間取り | 事務所 | 面積 | 101.52m² |
| 所在階 | 地上5階 | 最大スペース | |
| 住所 | 東京都中央区八丁堀3丁目3番2号 | 最寄駅 | 都営浅草線「宝町」駅徒歩2分 東京メトロ日比谷線「八丁堀」駅徒歩4分 東京メトロ有楽町線「新富町」駅徒歩9分 |
| その他交通 | 築年月 | 1986年10月 | |
| 方角 | 構造 | 鉄筋コンクリート造(RC造) 6階建 | |
| 契約期間 | 応相談 | 契約形態 | 普通借家 |
| 償却 | 0ヶ月 | 設備 | エレベーター |
| 更新料 | 0ヶ月 | 更新日 | 2025年09月11日 |
| 備考 | |||



お問い合わせの際は、「部屋No.49683」とお伝えください。





























1986年竣工、白いタイル張りの外観の建物です。平成通りから一本入った場所に立地しています。新耐震基準をクリアしています。
1フロア1テナント利用、室内に男女別のトイレと給湯室があります。
余計な柱がありませんので、効率よくレイアウトすることができます。セキュリティは機械警備を完備しています。
最寄駅の宝町駅のほか、八丁堀駅も徒歩4分で利用可能。
周辺はオフィスビルやマンションなどが混在するエリアです。飲食店も多くありますので利便性も良好です。