推奨利用人数
7人~8人
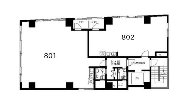
【成約済み】外神田ストークビル【事務所】 802号室
- 所在地:東京都千代田区外神田6丁目15番14号
- 交通:東京メトロ銀座線「末広町」駅徒歩1分
- 交通2:東京メトロ千代田線「湯島」駅徒歩4分
- 交通3:JR山手線「秋葉原」駅徒歩9分
| 賃料:-- (税別) | 管理費:15,930円 (税別) |
| 敷金:3ヶ月- | 礼金:1ヶ月 |
| 面積:46.39m² | 所在階:地上8階 |
| 間取り:事務所 | 築年月:1982年05月 |
| 賃料/管理費 | -- (税別)/15,930円 (税別) | フリーレント | 0ヶ月 |
|---|---|---|---|
| 敷金/礼金 | 3ヶ月/1ヶ月 | 内見・入居 | 内見可 |
| 間取り | 事務所 | 面積 | 46.39m² |
| 所在階 | 地上8階 | 最大スペース | |
| 住所 | 東京都千代田区外神田6丁目15番14号 | 最寄駅 | 東京メトロ銀座線「末広町」駅徒歩1分 東京メトロ千代田線「湯島」駅徒歩4分 JR山手線「秋葉原」駅徒歩9分 |
| その他交通 | 築年月 | 1982年05月 | |
| 方角 | 構造 | 鉄骨鉄筋コンクリート造(SRC造) 9階建 | |
| 契約期間 | 2年間 | 契約形態 | 普通借家 |
| 償却 | 0ヶ月 | 設備 | エレベーター , OAフロア |
| 更新料 | 1ヶ月 | 更新日 | 2025年09月11日 |
| 備考 | ・設備は残置物扱いとなります | ||
| その他費用 | ・更新事務手数料:新賃料の0.25ヶ月分 ・町会費:1,000円/月(税別) ・水道代:3,000円/月(税別) ・指定保証会社加入要 |
||



お問い合わせの際は、「部屋No.49696」とお伝えください。





























隣のブロックには芝と樹木に包まれた緑あふれる大人の公園の「練成公園」があり、気分転換にも使えます。
ランチ、カフェ、居酒屋と、周辺には飲食系店舗も多数あり、食事に困ることもありません。
中央通りをまっすぐ進めば、徒歩圏内に多路線利用可能な秋葉原駅もあるので、アクセス環境も良好です!