推奨利用人数
20人~24人
【成約済み】神田ファースト 3階
- 所在地:東京都千代田区神田紺屋町45番1号
- 交通:JR山手線「神田」駅徒歩3分
- 交通2:都営新宿線「岩本町」駅徒歩5分
- 交通3:東京メトロ日比谷線「秋葉原」駅徒歩7分
| 賃料:-- (税別) | 管理費:0円 (税別) |
| 敷金:6ヶ月- | 礼金:0ヶ月 |
| 面積:150.68m² | 所在階:地上3階 |
| 間取り:事務所 | 築年月:1988年04月 |
| 賃料/管理費 | -- (税別)/0円 (税別) | フリーレント | 0ヶ月 |
|---|---|---|---|
| 敷金/礼金 | 6ヶ月/0ヶ月 | 内見・入居 | 内見可 |
| 間取り | 事務所 | 面積 | 150.68m² |
| 所在階 | 地上3階 | 最大スペース | |
| 住所 | 東京都千代田区神田紺屋町45番1号 | 最寄駅 | JR山手線「神田」駅徒歩3分 都営新宿線「岩本町」駅徒歩5分 東京メトロ日比谷線「秋葉原」駅徒歩7分 |
| その他交通 | 東京メトロ丸の内線「淡路町」駅9分 | 築年月 | 1988年04月 |
| 方角 | 構造 | 鉄筋コンクリート造(RC造) 4階建 | |
| 契約期間 | 2年間 | 契約形態 | 普通借家 |
| 償却 | 0ヶ月 | 設備 | エレベーター , OAフロア |
| 更新料 | 0ヶ月 | 更新日 | 2025年09月11日 |
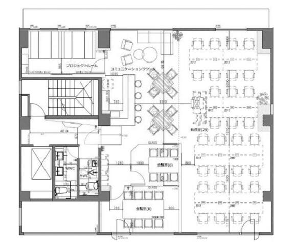
| 備考 | ・3階:セットアップオフィス | ||



お問い合わせの際は、「部屋No.49726」とお伝えください。





























1988年竣工のオフィスビル。グレーのタイル張りの外観でしっかりとした印象の建物です。新耐震基準をクリアしています。2019年5月末、内外装の大規模リニューアルを施し、デザイン性の高いオフィスへと生まれ変わりました。
1フロア1テナント利用、室内には受付や会議室などが予め造作されています。男女別のトイレと給湯室も完備され使い勝手も良好です。セキュリティは機械警備を完備、24時間いつでもご利用可能です。OA床や光ファイバー、個別空調など設備も充実しています。
神田駅東口から徒歩3分、周辺は低層のオフィスビルが並ぶ落ち着いたエリアです。駅周辺には飲食店も多く利便性も良好です。