推奨利用人数
40人以上
【成約済み】金山ビル 8階
- 所在地:東京都中央区新川1丁目2番12号
- 交通:東京メトロ日比谷線「茅場町」駅徒歩2分
- 交通2:東京メトロ半蔵門線「水天宮前」駅徒歩7分
- 交通3:東京メトロ東西線「日本橋」駅徒歩8分
| 賃料:-- (税別) | 管理費:347,624円 (税別) |
| 敷金:6ヶ月- | 礼金:0ヶ月 |
| 面積:328.36m² | 所在階:地上8階 |
| 間取り:事務所 | 築年月:1974年03月 |
| 賃料/管理費 | -- (税別)/347,624円 (税別) | フリーレント | 0ヶ月 |
|---|---|---|---|
| 敷金/礼金 | 6ヶ月/0ヶ月 | 内見・入居 | 内見可 |
| 間取り | 事務所 | 面積 | 328.36m² |
| 所在階 | 地上8階 | 最大スペース | |
| 住所 | 東京都中央区新川1丁目2番12号 | 最寄駅 | 東京メトロ日比谷線「茅場町」駅徒歩2分 東京メトロ半蔵門線「水天宮前」駅徒歩7分 東京メトロ東西線「日本橋」駅徒歩8分 |
| その他交通 | JR京葉線「八丁堀」駅徒歩8分 | 築年月 | 1974年03月 |
| 方角 | 構造 | 鉄筋コンクリート造(RC造) 8階建 | |
| 契約期間 | 2年間 | 契約形態 | 定期借家 |
| 償却 | 0ヶ月 | 設備 | エレベーター , OAフロア |
| 更新料 | 更新日 | 2025年09月11日 | |
| 備考 | |||
| その他費用 | ・保証会社加入要 | ||



お問い合わせの際は、「部屋No.49738」とお伝えください。





























1974年竣工、白い外壁の存在感のある建物です。耐震補強済み、新耐震基準にリニューアルしています。
永代通りに面しており、茅場町駅から隅田川方面へ向かって川を渡るとすぐに見えてくるランドマーク的オフィスです。
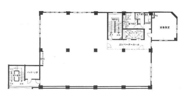
基準となるオフィスは1フロア約99坪。EV2基、OA床や男女別トイレ、機械警備完備など設備面も充実しています。
広々としたつくりのエレベーターホールは石造りで重厚感がございます。
周辺には飲食店やコンビニ、金融機関もございますので利便性も良好です。
最寄の茅場町駅をはじめ。八丁堀駅や水天宮前駅、日本橋駅など複数の駅と路線に徒歩10分以内でアクセスできるのも魅力です!