推奨利用人数
9人~10人
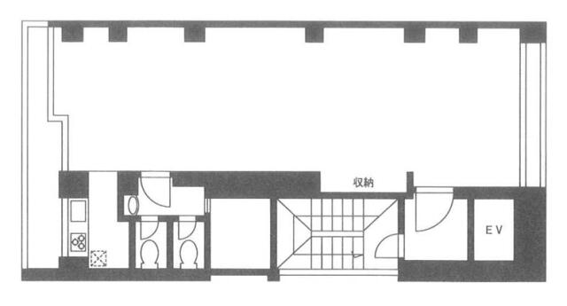
【成約済み】ガーデンタワー37 2階
- 所在地:東京都新宿区四谷坂町10番12号
- 交通:都営新宿線「曙橋」駅徒歩6分
- 交通2:JR中央・総武線「市ケ谷」駅徒歩11分
- 交通3:東京メトロ丸の内線「四ツ谷」駅徒歩11分
| 賃料:-- (税別) | 管理費:0円 (税別) |
| 敷金:6ヶ月- | 礼金:0ヶ月 |
| 面積:54.25m² | 所在階:地上2階 |
| 間取り:事務所 | 築年月:2002年10月 |
| 賃料/管理費 | -- (税別)/0円 (税別) | フリーレント | 0ヶ月 |
|---|---|---|---|
| 敷金/礼金 | 6ヶ月/0ヶ月 | 内見・入居 | 内見可 |
| 間取り | 事務所 | 面積 | 54.25m² |
| 所在階 | 地上2階 | 最大スペース | |
| 住所 | 東京都新宿区四谷坂町10番12号 | 最寄駅 | 都営新宿線「曙橋」駅徒歩6分 JR中央・総武線「市ケ谷」駅徒歩11分 東京メトロ丸の内線「四ツ谷」駅徒歩11分 |
| その他交通 | 築年月 | 2002年10月 | |
| 方角 | 構造 | 鉄筋コンクリート造(RC造) 8階建 | |
| 契約期間 | その他 | 契約形態 | |
| 償却 | 0ヶ月 | 設備 | エレベーター |
| 更新料 | 更新日 | 2025年09月11日 | |
| 備考 | |||



お問い合わせの際は、「部屋No.49741」とお伝えください。





























スリムな外観の新耐震基準物件です。
1フロア1テナントで気兼ねなく使えます。