推奨利用人数
3人~4人
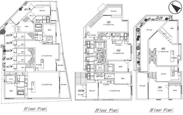
【成約済み】BARK LANE NAKAMEGURO 3号室
- 所在地:東京都目黒区上目黒3丁目17番1号
- 交通:東急東横線「中目黒」駅徒歩5分
- 交通2:東急東横線「代官山」駅徒歩12分
- 交通3:―
| 賃料:-- | 管理費:0円 |
| 敷金:3ヶ月- | 礼金:0ヶ月 |
| 面積:80.54m² | 所在階:地上2階 |
| 間取り:1LDK+S | 築年月:2019年02月 |
| 賃料/管理費 | --/0円 | フリーレント | 0ヶ月 |
|---|---|---|---|
| 敷金/礼金 | 3ヶ月/0ヶ月 | 内見・入居 | 内見可 |
| 間取り | 1LDK+S | 面積 | 80.54m² |
| 所在階 | 地上2階 | 最大スペース | |
| 住所 | 東京都目黒区上目黒3丁目17番1号 | 最寄駅 | 東急東横線「中目黒」駅徒歩5分 東急東横線「代官山」駅徒歩12分 ― |
| その他交通 | 築年月 | 2019年02月 | |
| 方角 | 構造 | 鉄筋コンクリート造(RC造) 3階建 | |
| 契約期間 | 2年間 | 契約形態 | 普通借家 |
| 償却 | 0ヶ月 | 設備 | |
| 更新料 | 1ヶ月 | 更新日 | 2025年09月11日 |
| 備考 | |||



お問い合わせの際は、「部屋No.49803」とお伝えください。





























お洒落なSOHO可物件です。
共用部の随所に植物が植えられていて、癒しの空間も確保されています。
小型犬・猫ならペットも相談可能。
室内も床は木目調であたたかみがありながら、水回りはスタイリッシュな雰囲気も!
部屋によっては、テラスも付いていている贅沢な間取りもあります(001.003.005.006.008)
全部屋に温水洗浄便座あり、敷地内にゴミ置き場がある点も嬉しいSOHOマンションです!