推奨利用人数
15人~19人
【成約済み】後楽園SAJビル 8階
- 所在地:東京都文京区本郷1丁目34番3号
- 交通:都営大江戸線「春日」駅徒歩3分
- 交通2:都営三田線「水道橋」駅徒歩4分
- 交通3:東京メトロ丸の内線「本郷三丁目」駅徒歩8分
| 賃料:相談 (税別) | 管理費:相談 (税別) |
| 敷金:12ヶ月- | 礼金:0ヶ月 |
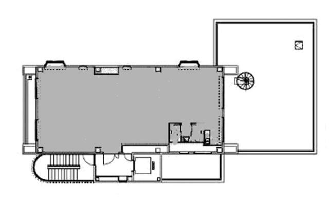
| 面積:111.7m² | 所在階:地上8階 |
| 間取り:事務所 | 築年月:1992年10月 |
| 賃料/管理費 | 相談 (税別)/相談 (税別) | フリーレント | 0ヶ月 |
|---|---|---|---|
| 敷金/礼金 | 12ヶ月/0ヶ月 | 内見・入居 | 相談 |
| 間取り | 事務所 | 面積 | 111.7m² |
| 所在階 | 地上8階 | 最大スペース | |
| 住所 | 東京都文京区本郷1丁目34番3号 | 最寄駅 | 都営大江戸線「春日」駅徒歩3分 都営三田線「水道橋」駅徒歩4分 東京メトロ丸の内線「本郷三丁目」駅徒歩8分 |
| その他交通 | 東京メトロ南北線「後楽園」駅5分 | 築年月 | 1992年10月 |
| 方角 | 構造 | 鉄骨構造(S造) 9階建 | |
| 契約期間 | 2年間 | 契約形態 | 普通借家 |
| 償却 | 0ヶ月 | 設備 | エレベーター , OAフロア |
| 更新料 | 0ヶ月 | 更新日 | 2025年09月11日 |
| 備考 | |||



お問い合わせの際は、「部屋No.49823」とお伝えください。





























1992年竣工、グリーンと赤茶色の御影石を使用した高級感のある外観の建物です。新耐震基準をクリアしています。目の前は東京ドームシティでお客様に説明しやすい立地です。
基準とばるオフィスは約66坪、室内にミニキッチンと男女別のトイレがあり使い勝手も良好です。セキュリティは機械警備を完備していますので安心してご利用頂けます。
最寄の春日駅のほか、徒歩10分以内で複数の駅が利用可能ですので、都内各所へのアクセスもスムーズです。
2016年 空調更新(2-7F)
2018年 空調・トイレ新設(8・9F)、ミニキッチン新設(2-9F) 全館照明LED化をしています。