推奨利用人数
25人~29人
【成約済み】上野TGビル 4階
- 所在地:東京都台東区上野6丁目16番22号
- 交通:東京メトロ日比谷線「上野」駅徒歩2分
- 交通2:都営大江戸線「上野御徒町」駅徒歩5分
- 交通3:JR山手線「御徒町」駅徒歩4分
| 賃料:相談 (税別) | 管理費:相談 (税別) |
| 敷金:12ヶ月- | 礼金:0ヶ月 |
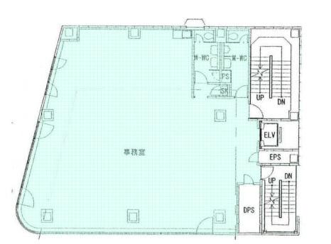
| 面積:182.55m² | 所在階:地上4階 |
| 間取り:事務所 | 築年月:1993年11月 |
| 賃料/管理費 | 相談 (税別)/相談 (税別) | フリーレント | 0ヶ月 |
|---|---|---|---|
| 敷金/礼金 | 12ヶ月/0ヶ月 | 内見・入居 | 内見可 |
| 間取り | 事務所 | 面積 | 182.55m² |
| 所在階 | 地上4階 | 最大スペース | |
| 住所 | 東京都台東区上野6丁目16番22号 | 最寄駅 | 東京メトロ日比谷線「上野」駅徒歩2分 都営大江戸線「上野御徒町」駅徒歩5分 JR山手線「御徒町」駅徒歩4分 |
| その他交通 | 築年月 | 1993年11月 | |
| 方角 | 構造 | 鉄骨構造(S造) 9階建 | |
| 契約期間 | その他 | 契約形態 | |
| 償却 | 0ヶ月 | 設備 | エレベーター , OAフロア |
| 更新料 | 0ヶ月 | 更新日 | 2025年09月11日 |
| 備考 | |||



お問い合わせの際は、「部屋No.49827」とお伝えください。





























1993年竣工、ベージュ色のパネル張りの外観の建物で、1階はコンビニエンスストアが入店していますので目印になります。
1フロア約55坪、1フロア1テナント利用で室内に男女別のトイレがございます。OA床や個別空調など設備面も充実。セキュリティは機械警備を完備しており、24時間いつでも安心してご利用頂けます。
昭和通り沿いの角地に立地、視認性もよく、室内は2面採光です。周辺は飲食店も多くランチ環境も良好!JR上野駅をはじめ、複数の駅や路線にアクセスできますので利便性も良いです。