推奨利用人数
40人以上
【成約済み】カーザビアンカ 1階
- 所在地:東京都文京区関口1丁目43番6号
- 交通:東京メトロ有楽町線「江戸川橋」駅徒歩7分
- 交通2:東京メトロ東西線「早稲田」駅徒歩8分
- 交通3:―
| 賃料:-- (税別) | 管理費:0円 (税別) |
| 敷金:12ヶ月- | 礼金:0ヶ月 |
| 面積:282.64m² | 所在階:地上1階 |
| 間取り:事務所 | 築年月:2019年02月 |
| 賃料/管理費 | -- (税別)/0円 (税別) | フリーレント | 0ヶ月 |
|---|---|---|---|
| 敷金/礼金 | 12ヶ月/0ヶ月 | 内見・入居 | 内見可 |
| 間取り | 事務所 | 面積 | 282.64m² |
| 所在階 | 地上1階 | 最大スペース | |
| 住所 | 東京都文京区関口1丁目43番6号 | 最寄駅 | 東京メトロ有楽町線「江戸川橋」駅徒歩7分 東京メトロ東西線「早稲田」駅徒歩8分 ― |
| その他交通 | 築年月 | 2019年02月 | |
| 方角 | 構造 | 鉄筋コンクリート造(RC造) 13階建 | |
| 契約期間 | 3年間 | 契約形態 | 定期借家 |
| 償却 | 0ヶ月 | 設備 | エレベーター , OAフロア |
| 更新料 | 更新日 | 2025年09月11日 | |
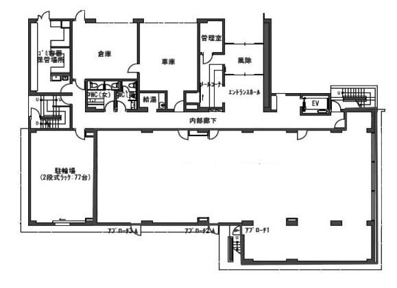
| 備考 | ・1階 分割相談可能(57坪・28.5坪) 軽飲食相談可能 | ||



お問い合わせの際は、「部屋No.49860」とお伝えください。





























2019年2月竣工、地上13階建て、白いタイル張りの外観の賃貸マンションです。1階に事務所区画、2階以上が住居となっています。新耐震基準をクリアしています。
共用部に男女別のトイレと給湯室がありますので、貸室内は効率よくレイアウトすることが可能です。OA床や個別空調など設備面も充実しています。
新目白通りから少し入った場所に立地しており、周辺は落ち着いた環境。春には神田川沿いの桜が楽しめます。