推奨利用人数
15人~19人
【成約済み】IT秋葉原ビル 2階
- 所在地:東京都千代田区神田和泉町1丁目3番13号
- 交通:JR山手線「秋葉原」駅徒歩3分
- 交通2:都営新宿線「岩本町」駅徒歩6分
- 交通3:東京メトロ銀座線「末広町」駅徒歩8分
| 賃料:-- (税別) | 管理費:105,630円 (税別) |
| 敷金:8ヶ月- | 礼金:1ヶ月 |
| 面積:116.4m² | 所在階:地上2階 |
| 間取り:事務所 | 築年月:1991年03月 |
| 賃料/管理費 | -- (税別)/105,630円 (税別) | フリーレント | 0ヶ月 |
|---|---|---|---|
| 敷金/礼金 | 8ヶ月/1ヶ月 | 内見・入居 | 相談 |
| 間取り | 事務所 | 面積 | 116.4m² |
| 所在階 | 地上2階 | 最大スペース | |
| 住所 | 東京都千代田区神田和泉町1丁目3番13号 | 最寄駅 | JR山手線「秋葉原」駅徒歩3分 都営新宿線「岩本町」駅徒歩6分 東京メトロ銀座線「末広町」駅徒歩8分 |
| その他交通 | 築年月 | 1991年03月 | |
| 方角 | 構造 | 鉄筋コンクリート造(RC造) 6階建 | |
| 契約期間 | その他 | 契約形態 | |
| 償却 | 2ヶ月 | 設備 | エレベーター |
| 更新料 | 1ヶ月 | 更新日 | 2025年09月11日 |
| 備考 | |||



お問い合わせの際は、「部屋No.49871」とお伝えください。





























1991年竣工、グレーのパネル張りの落ち着いた雰囲気の外観の建物です。新耐震基準をクリアしています。
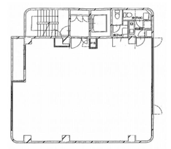
基準となるフロアは約35坪、1フロア1テナント利用、室内に男女別のトイレと給湯室があり使い勝手も良好です。
昭和通りから少し入った場所に立地しており、周辺は比較的落ち着いたエリア。駅前には多くの商業店舗や飲食店が多くありますので利便性も良好です。