推奨利用人数
15人~19人
【成約済み】TQ蛎殻町(旧:BRICK GATE日本橋蛎殻町) 3階
- 所在地:東京都中央区日本橋蛎殻町1丁目6番9号
- 交通:東京メトロ半蔵門線「水天宮前」駅徒歩3分
- 交通2:東京メトロ東西線「茅場町」駅徒歩5分
- 交通3:東京メトロ日比谷線「人形町」駅徒歩6分
| 賃料:相談 (税別) | 管理費:相談 (税別) |
| 敷金:7ヶ月- | 礼金:0ヶ月 |
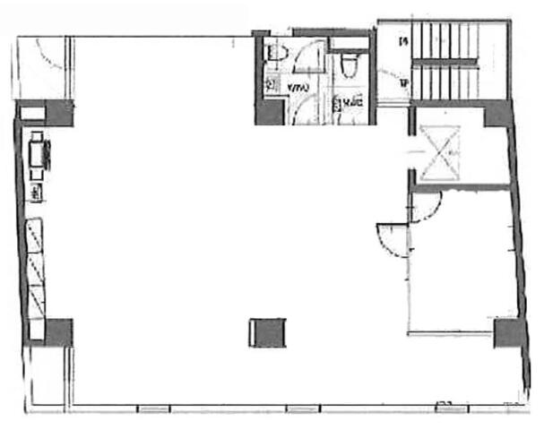
| 面積:116.73m² | 所在階:地上3階 |
| 間取り:事務所 | 築年月:1988年02月 |
| 賃料/管理費 | 相談 (税別)/相談 (税別) | フリーレント | 0ヶ月 |
|---|---|---|---|
| 敷金/礼金 | 7ヶ月/0ヶ月 | 内見・入居 | 相談 |
| 間取り | 事務所 | 面積 | 116.73m² |
| 所在階 | 地上3階 | 最大スペース | |
| 住所 | 東京都中央区日本橋蛎殻町1丁目6番9号 | 最寄駅 | 東京メトロ半蔵門線「水天宮前」駅徒歩3分 東京メトロ東西線「茅場町」駅徒歩5分 東京メトロ日比谷線「人形町」駅徒歩6分 |
| その他交通 | 築年月 | 1988年02月 | |
| 方角 | 構造 | 鉄筋コンクリート造(RC造) 7階建 | |
| 契約期間 | 2年間 | 契約形態 | 普通借家 |
| 償却 | 0ヶ月 | 設備 | エレベーター , OAフロア |
| 更新料 | 0ヶ月 | 更新日 | 2025年09月11日 |
| 備考 | |||



お問い合わせの際は、「部屋No.49885」とお伝えください。





























1988年竣工、温かみのある茶色のタイル張りの外観と大きな窓が印象的なオフィスです。新耐震基準をクリアしています。
1フロア1テナント利用のオフィスは、室内に男女別のトイレと給湯室を完備、OA床や個別空調、光ファイバーなど設備も充実しています。セキュリティは機械警備を完備しており、安心して24時間利用可能です。
最寄の水天宮前駅は徒歩3分の距離、駅前は飲食店やコンビニが多く利便性も良好です。