推奨利用人数
11人~12人
【成約済み】A青山ビル 1階
- 所在地:東京都港区南青山2丁目10番11号
- 交通:東京メトロ銀座線「外苑前」駅徒歩4分
- 交通2:東京メトロ半蔵門線「青山一丁目」駅徒歩5分
- 交通3:東京メトロ千代田線「乃木坂」駅徒歩11分
| 賃料:-- (税別) | 管理費:0円 (税別) |
| 敷金:7ヶ月- | 礼金:0ヶ月 |
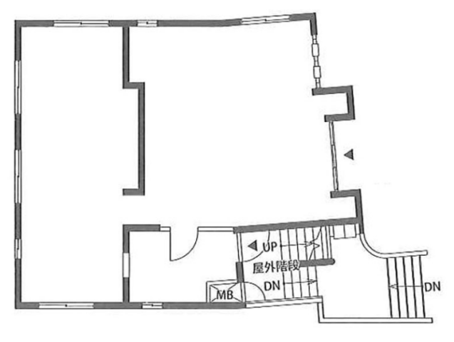
| 面積:69.75m² | 所在階:地上1階 |
| 間取り:事務所 | 築年月:1990年04月 |
| 賃料/管理費 | -- (税別)/0円 (税別) | フリーレント | 0ヶ月 |
|---|---|---|---|
| 敷金/礼金 | 7ヶ月/0ヶ月 | 内見・入居 | 内見可 |
| 間取り | 事務所 | 面積 | 69.75m² |
| 所在階 | 地上1階 | 最大スペース | |
| 住所 | 東京都港区南青山2丁目10番11号 | 最寄駅 | 東京メトロ銀座線「外苑前」駅徒歩4分 東京メトロ半蔵門線「青山一丁目」駅徒歩5分 東京メトロ千代田線「乃木坂」駅徒歩11分 |
| その他交通 | 築年月 | 1990年04月 | |
| 方角 | 構造 | 鉄筋コンクリート造(RC造) 4階建 | |
| 契約期間 | 2年間 | 契約形態 | |
| 償却 | 2ヶ月 | 設備 | |
| 更新料 | 1ヶ月 | 更新日 | 2025年09月11日 |
| 備考 | |||



お問い合わせの際は、「部屋No.49893」とお伝えください。





























1990年竣工、地上4階建ての建物。青山通りから1本中に入った閑静なエリアのオフィスです。
2017年に内外装をリニューアルし、デザイン性の高いオフィスへと生まれ変わりました。
1フロア約20坪、室内に男女別トイレ。ガラスパーテーションで仕切られた空間は圧迫感を感じさせません。