推奨利用人数
25人~29人
【成約済み】新橋森ビル 5階
- 所在地:東京都港区芝公園2丁目4番1号
- 交通:都営三田線「御成門」駅徒歩6分
- 交通2:JR山手線「新橋」駅徒歩7分
- 交通3:都営大江戸線「汐留」駅徒歩9分
| 賃料:相談 (税別) | 管理費:相談 (税別) |
| 敷金:12ヶ月- | 礼金:0ヶ月 |
| 面積:183.27m² | 所在階:地上5階 |
| 間取り:事務所 | 築年月:1989年03月 |
| 賃料/管理費 | 相談 (税別)/相談 (税別) | フリーレント | 0ヶ月 |
|---|---|---|---|
| 敷金/礼金 | 12ヶ月/0ヶ月 | 内見・入居 | 内見可 |
| 間取り | 事務所 | 面積 | 183.27m² |
| 所在階 | 地上5階 | 最大スペース | |
| 住所 | 東京都港区芝公園2丁目4番1号 | 最寄駅 | 都営三田線「御成門」駅徒歩6分 JR山手線「新橋」駅徒歩7分 都営大江戸線「汐留」駅徒歩9分 |
| その他交通 | 築年月 | 1989年03月 | |
| 方角 | 構造 | 鉄骨鉄筋コンクリート造(SRC造) 5階建 | |
| 契約期間 | その他 | 契約形態 | |
| 償却 | 0ヶ月 | 設備 | エレベーター , OAフロア |
| 更新料 | 更新日 | 2025年09月11日 | |
| 備考 | |||



お問い合わせの際は、「部屋No.49896」とお伝えください。





























1989年竣工、光沢のある白いパネル張りの建物です。新耐震基準をクリアしています。
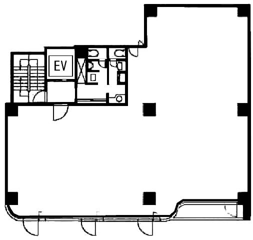
1フロア約55坪、L字形状の間取りです。室外に男女別のトイレがあり、室内は効率よくレイアウトすることが可能です。
周辺は飲食店が多いエリア、ランチなどにも便利です。最寄の御成門駅までは徒歩6分、複数路線が利用可能な新橋駅も徒歩7分で利用することができますので、アクセスも良好です。