推奨利用人数
20人~24人
イセツネビル 7階
- 所在地:東京都中央区築地1丁目9番2号
- 交通:東京メトロ日比谷線「築地」駅徒歩3分
- 交通2:東京メトロ有楽町線「新富町」駅徒歩3分
- 交通3:都営浅草線「東銀座」駅徒歩6分
| 賃料:810,480円 (税別) | 管理費:0円 (税別) |
| 敷金:4ヶ月- | 礼金:0ヶ月 |
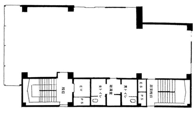
| 面積:162.38m² | 所在階:地上7階 |
| 間取り:事務所 | 築年月:1981年06月 |
| 賃料/管理費 | 810,480円 (税別)/0円 (税別) | フリーレント | 0ヶ月 |
|---|---|---|---|
| 敷金/礼金 | 4ヶ月/0ヶ月 | 内見・入居 | 内見可 |
| 間取り | 事務所 | 面積 | 162.38m² |
| 所在階 | 地上7階 | 最大スペース | |
| 住所 | 東京都中央区築地1丁目9番2号 | 最寄駅 | 東京メトロ日比谷線「築地」駅徒歩3分 東京メトロ有楽町線「新富町」駅徒歩3分 都営浅草線「東銀座」駅徒歩6分 |
| その他交通 | 都営大江戸線「築地市場」駅10分 | 築年月 | 1981年06月 |
| 方角 | 構造 | 鉄骨鉄筋コンクリート造(SRC造) 9階建 | |
| 契約期間 | 2年間 | 契約形態 | 定期借家 |
| 償却 | 0ヶ月 | 設備 | エレベーター |
| 更新料 | 0ヶ月 | 更新日 | 2025年09月11日 |
| 備考 | |||



お問い合わせの際は、「部屋No.49918」とお伝えください。





























1981年竣工、白いタイル張りとミラーガラス張りの外観の建物です。2014年に耐震補強工事を実施しております。
1フロア1テナント利用、室内に男女別のトイレと給湯設備を完備しています。セキュリティは機械警備を導入しています。
周辺は「築地」という場所柄飲食店も多く、ランチ環境も充実。ビルの1階にはカフェが入店していますので、打ち合わせや休憩にも便利です。
最寄の築地駅は徒歩3分、そのほか新富町駅や東銀座駅、築地市場駅も徒歩10分以内で利用できますので、交通アクセスも良好です。