推奨利用人数
9人~10人
【成約済み】後楽園ビル 601号室
- 所在地:東京都新宿区高田馬場1丁目33番15号
- 交通:JR山手線「高田馬場」駅徒歩3分
- 交通2:東京メトロ副都心線「西早稲田」駅徒歩9分
- 交通3:―
| 賃料:-- (税別) | 管理費:30,000円 (税別) |
| 敷金:5ヶ月- | 礼金:0ヶ月 |
| 面積:59.74m² | 所在階:地上6階 |
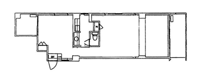
| 間取り:事務所 | 築年月:1976年10月 |
| 賃料/管理費 | -- (税別)/30,000円 (税別) | フリーレント | 0ヶ月 |
|---|---|---|---|
| 敷金/礼金 | 5ヶ月/0ヶ月 | 内見・入居 | 内見可 |
| 間取り | 事務所 | 面積 | 59.74m² |
| 所在階 | 地上6階 | 最大スペース | |
| 住所 | 東京都新宿区高田馬場1丁目33番15号 | 最寄駅 | JR山手線「高田馬場」駅徒歩3分 東京メトロ副都心線「西早稲田」駅徒歩9分 ― |
| その他交通 | 築年月 | 1976年10月 | |
| 方角 | 構造 | 鉄筋コンクリート造(RC造) 7階建 | |
| 契約期間 | その他 | 契約形態 | |
| 償却 | 2ヶ月 | 設備 | エレベーター |
| 更新料 | 1ヶ月 | 更新日 | 2025年09月11日 |
| 備考 | |||



お問い合わせの際は、「部屋No.49934」とお伝えください。





























1976年竣工、地上7階建、茶色の外壁の建物です。1、2階には飲食店舗などがあり目印になります。
JR山手線・東京メトロ東西線や西武新宿線が乗りいれている「高田馬場」駅徒歩2分の好立地です。
基準となるフロアは約40坪、募集時期により分割区画がございます。共用部に男女別のトイレがあり使い勝手も良好です。
周辺はオフィス街、飲食店やコンビニなども近くにありますので利便性も良好です。