推奨利用人数
13人~14人
【成約済み】飯田橋ISビル(後楽) 5階
- 所在地:東京都文京区後楽2丁目2番21号
- 交通:東京メトロ東西線「飯田橋」駅徒歩5分
- 交通2:JR中央・総武線「水道橋」駅徒歩9分
- 交通3:都営大江戸線「飯田橋」駅徒歩1分
| 賃料:-- (税別) | 管理費:72,000円 (税別) |
| 敷金:10ヶ月- | 礼金:0ヶ月 |
| 面積:79.34m² | 所在階:地上5階 |
| 間取り:事務所 | 築年月:1989年08月 |
| 賃料/管理費 | -- (税別)/72,000円 (税別) | フリーレント | 0ヶ月 |
|---|---|---|---|
| 敷金/礼金 | 10ヶ月/0ヶ月 | 内見・入居 | 相談 |
| 間取り | 事務所 | 面積 | 79.34m² |
| 所在階 | 地上5階 | 最大スペース | |
| 住所 | 東京都文京区後楽2丁目2番21号 | 最寄駅 | 東京メトロ東西線「飯田橋」駅徒歩5分 JR中央・総武線「水道橋」駅徒歩9分 都営大江戸線「飯田橋」駅徒歩1分 |
| その他交通 | 築年月 | 1989年08月 | |
| 方角 | 構造 | 鉄骨構造(S造) 7階建 | |
| 契約期間 | 2年間 | 契約形態 | 定期借家 |
| 償却 | 0ヶ月 | 設備 | エレベーター |
| 更新料 | 1ヶ月 | 更新日 | 2025年09月11日 |
| 備考 | |||



お問い合わせの際は、「部屋No.49994」とお伝えください。





























1989年竣工、ベージュのタイル張りの外観の建物です。新耐震基準をクリアしています。
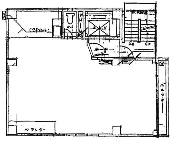
基準となるオフィスは約24坪、1フロア1テナント利用、室内にトイレと給湯設備があり使い勝手も良好です。
外堀通りから少し入った場所に立地、目の前は学校で比較的落ち着いた周辺環境です。
大江戸線飯田橋駅は徒歩1分!周辺に店舗は少ないものの、JR飯田橋駅周辺には飲食店なども多くありますので便利です。