推奨利用人数
11人~12人
【成約済み】日本橋親和ビル 4階
- 所在地:東京都中央区日本橋1丁目2番2号
- 交通:東京メトロ東西線「日本橋」駅徒歩2分
- 交通2:東京メトロ銀座線「三越前」駅徒歩3分
- 交通3:JR山手線「東京」駅徒歩7分
| 賃料:相談 (税別) | 管理費:相談 (税別) |
| 敷金:相談- | 礼金:0ヶ月 |
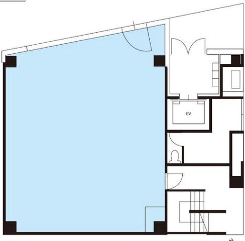
| 面積:73.69m² | 所在階:地上4階 |
| 間取り:事務所 | 築年月:1986年05月 |
| 賃料/管理費 | 相談 (税別)/相談 (税別) | フリーレント | 0ヶ月 |
|---|---|---|---|
| 敷金/礼金 | 相談/0ヶ月 | 内見・入居 | 内見可 |
| 間取り | 事務所 | 面積 | 73.69m² |
| 所在階 | 地上4階 | 最大スペース | |
| 住所 | 東京都中央区日本橋1丁目2番2号 | 最寄駅 | 東京メトロ東西線「日本橋」駅徒歩2分 東京メトロ銀座線「三越前」駅徒歩3分 JR山手線「東京」駅徒歩7分 |
| その他交通 | 築年月 | 1986年05月 | |
| 方角 | 構造 | 鉄骨構造(S造) 9階建 | |
| 契約期間 | その他 | 契約形態 | |
| 償却 | 0ヶ月 | 設備 | エレベーター |
| 更新料 | 更新日 | 2025年09月11日 | |
| 備考 | ・4階:定期借家契約 2025年12月迄 | ||



お問い合わせの際は、「部屋No.50038」とお伝えください。





























1986年竣工、白い外壁の建物です。1階には飲食店が入居しており目印になります。
1フロア約22坪、室内に給湯設備と専用のトイレがありますので使い勝手も良好です。貸室内には余計な柱もありませんので効率よくレイアウトできます。
駅周辺には飲食店も多く、ランチにも便利なです!