推奨利用人数
15人~19人
【成約済み】イーストインタービル 3階
- 所在地:東京都中央区日本橋茅場町2丁目7番3号
- 交通:東京メトロ東西線「茅場町」駅徒歩1分
- 交通2:東京メトロ銀座線「日本橋」駅徒歩4分
- 交通3:東京メトロ日比谷線「八丁堀」駅徒歩4分
| 賃料:-- (税別) | 管理費:108,390円 (税別) |
| 敷金:5ヶ月- | 礼金:0ヶ月 |
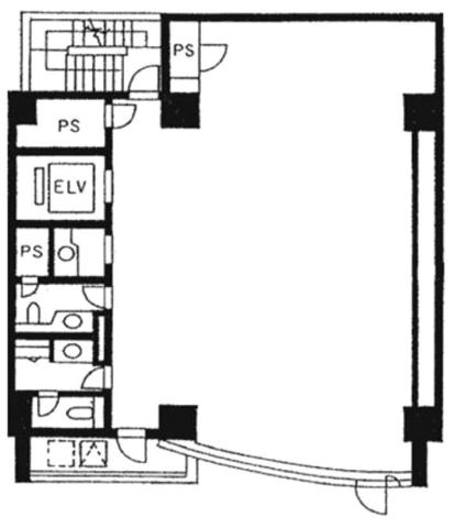
| 面積:119.44m² | 所在階:地上3階 |
| 間取り:事務所 | 築年月:1994年11月 |
| 賃料/管理費 | -- (税別)/108,390円 (税別) | フリーレント | 0ヶ月 |
|---|---|---|---|
| 敷金/礼金 | 5ヶ月/0ヶ月 | 内見・入居 | 内見可 |
| 間取り | 事務所 | 面積 | 119.44m² |
| 所在階 | 地上3階 | 最大スペース | |
| 住所 | 東京都中央区日本橋茅場町2丁目7番3号 | 最寄駅 | 東京メトロ東西線「茅場町」駅徒歩1分 東京メトロ銀座線「日本橋」駅徒歩4分 東京メトロ日比谷線「八丁堀」駅徒歩4分 |
| その他交通 | 築年月 | 1994年11月 | |
| 方角 | 構造 | 鉄骨鉄筋コンクリート造(SRC造) 11階建 | |
| 契約期間 | 2年間 | 契約形態 | 普通借家 |
| 償却 | 2ヶ月 | 設備 | エレベーター |
| 更新料 | 1ヶ月 | 更新日 | 2025年09月11日 |
| 備考 | |||



お問い合わせの際は、「部屋No.50052」とお伝えください。





























1994年竣工、グレーの外壁に赤いバルコニーの柵がアクセントのおしゃれな雰囲気の建物です。
基準となるフロアは1フロア約36坪。EV1基、1フロア1テナント利用のオフィスです。
室内には男女別のトイレと給湯室があり使い勝手も良好。個別空調や機械警備など設備も充実しています。
複数路線利用可能で交通アクセス良好
1階にインターホンがあり、来客対応にも便利です。