推奨利用人数
13人~14人
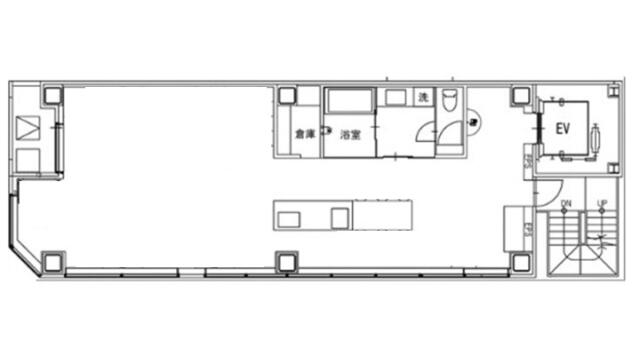
神田カドウチ 9階
- 所在地:東京都千代田区神田鍛冶町3丁目7番
- 交通:JR山手線「神田」駅徒歩2分
- 交通2:都営新宿線「小川町」駅徒歩5分
- 交通3:東京メトロ丸の内線「淡路町」駅徒歩7分
| 賃料:523,600円 | 管理費:0円 |
| 敷金:6ヶ月- | 礼金:0ヶ月 |
| 面積:86.55m² | 所在階:地上9階 |
| 間取り:1R | 築年月:2019年01月 |
| 賃料/管理費 | 523,600円/0円 | フリーレント | 0ヶ月 |
|---|---|---|---|
| 敷金/礼金 | 6ヶ月/0ヶ月 | 内見・入居 | 内見可 |
| 間取り | 1R | 面積 | 86.55m² |
| 所在階 | 地上9階 | 最大スペース | |
| 住所 | 東京都千代田区神田鍛冶町3丁目7番 | 最寄駅 | JR山手線「神田」駅徒歩2分 都営新宿線「小川町」駅徒歩5分 東京メトロ丸の内線「淡路町」駅徒歩7分 |
| その他交通 | 築年月 | 2019年01月 | |
| 方角 | 構造 | 鉄骨構造(S造) 10階建 | |
| 契約期間 | 5年間 | 契約形態 | 定期借家 |
| 償却 | 1ヶ月 | 設備 | エレベーター |
| 更新料 | 1ヶ月 | 更新日 | 2025年09月11日 |
| 備考 | |||



お問い合わせの際は、「部屋No.50076」とお伝えください。





























2019年1月竣工、白い外壁に低層部分が光沢のある茶色のパネル張りの外観の建物です。新耐震基準をクリアしています。
基準となるフロアは約27坪、1フロア1テナント利用、室内には専用のトイレがあり使い勝手も良好です。
最寄は神田駅、そのほか、小川町駅、淡路町駅、新日本橋駅、秋葉原駅が徒歩10分以内で利用でき、交通アクセスも良好です!