推奨利用人数
20人~24人
【成約済み】ASK日本橋ビル 2階
- 所在地:東京都中央区日本橋小伝馬町15番17号
- 交通:東京メトロ日比谷線「小伝馬町」駅徒歩3分
- 交通2:都営新宿線「馬喰横山」駅徒歩3分
- 交通3:都営浅草線「東日本橋」駅徒歩7分
| 賃料:相談 (税別) | 管理費:相談 (税別) |
| 敷金:6ヶ月- | 礼金:0ヶ月 |
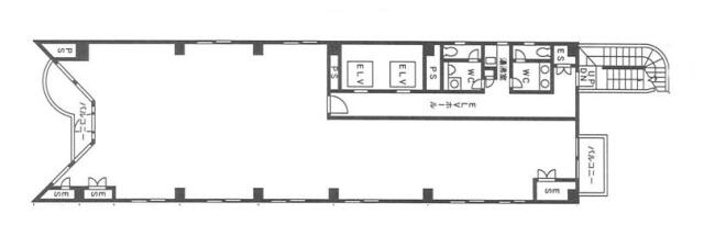
| 面積:130.48m² | 所在階:地上2階 |
| 間取り:事務所 | 築年月:1990年03月 |
| 賃料/管理費 | 相談 (税別)/相談 (税別) | フリーレント | 0ヶ月 |
|---|---|---|---|
| 敷金/礼金 | 6ヶ月/0ヶ月 | 内見・入居 | 内見可 |
| 間取り | 事務所 | 面積 | 130.48m² |
| 所在階 | 地上2階 | 最大スペース | |
| 住所 | 東京都中央区日本橋小伝馬町15番17号 | 最寄駅 | 東京メトロ日比谷線「小伝馬町」駅徒歩3分 都営新宿線「馬喰横山」駅徒歩3分 都営浅草線「東日本橋」駅徒歩7分 |
| その他交通 | 築年月 | 1990年03月 | |
| 方角 | 構造 | 鉄骨鉄筋コンクリート造(SRC造) 10階建 | |
| 契約期間 | その他 | 契約形態 | |
| 償却 | 0ヶ月 | 設備 | エレベーター |
| 更新料 | 0ヶ月 | 更新日 | 2025年09月11日 |
| 備考 | |||



お問い合わせの際は、「部屋No.50079」とお伝えください。





























1990年竣工、前面ガラス張り、弧を描く窓が印象的な外観の建物です。新大意新基準をクリアしています。
1フロア約49坪、EV2基、室内に男女別のトイレと給湯室があり使い勝手も良好です。セキュリティは機械警備を完備、24時間いつでもご利用可能なオフィスです。
周辺はオフィスが並ぶエリア、隣のビルにはカフェがありちょっとした打ち合わせや休憩に便利です。周辺は飲食店も多くあり利便性も良好です。