推奨利用人数
20人~24人
【成約済み】東邦ビル 6階
- 所在地:東京都新宿区新宿1丁目15番15号
- 交通:東京メトロ丸の内線「新宿御苑前」駅徒歩3分
- 交通2:東京メトロ副都心線「新宿三丁目」駅徒歩8分
- 交通3:JR山手線「新宿」駅徒歩13分
| 賃料:-- (税別) | 管理費:80,297円 (税別) |
| 敷金:6ヶ月- | 礼金:0ヶ月 |
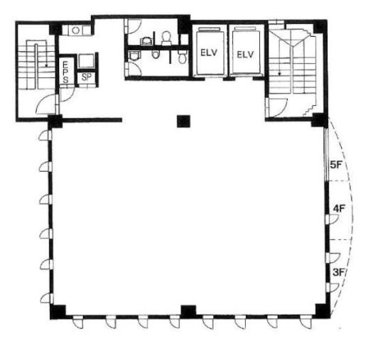
| 面積:147.49m² | 所在階:地上6階 |
| 間取り:事務所 | 築年月:1988年12月 |
| 賃料/管理費 | -- (税別)/80,297円 (税別) | フリーレント | 0ヶ月 |
|---|---|---|---|
| 敷金/礼金 | 6ヶ月/0ヶ月 | 内見・入居 | 相談 |
| 間取り | 事務所 | 面積 | 147.49m² |
| 所在階 | 地上6階 | 最大スペース | |
| 住所 | 東京都新宿区新宿1丁目15番15号 | 最寄駅 | 東京メトロ丸の内線「新宿御苑前」駅徒歩3分 東京メトロ副都心線「新宿三丁目」駅徒歩8分 JR山手線「新宿」駅徒歩13分 |
| その他交通 | 築年月 | 1988年12月 | |
| 方角 | 構造 | 鉄骨鉄筋コンクリート造(SRC造) 8階建 | |
| 契約期間 | 2年間 | 契約形態 | 普通借家 |
| 償却 | 0ヶ月 | 設備 | エレベーター |
| 更新料 | 0ヶ月 | 更新日 | 2025年09月11日 |
| 備考 | |||



お問い合わせの際は、「部屋No.50091」とお伝えください。





























8階建ての新耐震基準の賃貸オフィスビル
人気の1フロア1テナントで、室内は使いやすい間取り
エレベーター2基、男女別トイレ
周辺には飲食店やコンビニがありランチにも便利です