推奨利用人数
25人~29人
【成約済み】末広ビル(神田和泉町) 6階
- 所在地:東京都千代田区神田和泉町1丁目12番16号
- 交通:JR山手線「秋葉原」駅徒歩5分
- 交通2:都営新宿線「岩本町」駅徒歩6分
- 交通3:東京メトロ銀座線「末広町」駅徒歩12分
| 賃料:-- (税別) | 管理費:133,295円 (税別) |
| 敷金:6ヶ月- | 礼金:0ヶ月 |
| 面積:183.6m² | 所在階:地上6階 |
| 間取り:事務所 | 築年月:1978年08月 |
| 賃料/管理費 | -- (税別)/133,295円 (税別) | フリーレント | 0ヶ月 |
|---|---|---|---|
| 敷金/礼金 | 6ヶ月/0ヶ月 | 内見・入居 | 内見可 |
| 間取り | 事務所 | 面積 | 183.6m² |
| 所在階 | 地上6階 | 最大スペース | |
| 住所 | 東京都千代田区神田和泉町1丁目12番16号 | 最寄駅 | JR山手線「秋葉原」駅徒歩5分 都営新宿線「岩本町」駅徒歩6分 東京メトロ銀座線「末広町」駅徒歩12分 |
| その他交通 | 築年月 | 1978年08月 | |
| 方角 | 構造 | 鉄骨鉄筋コンクリート造(SRC造) 9階建 | |
| 契約期間 | 2年間 | 契約形態 | 普通借家 |
| 償却 | 2ヶ月 | 設備 | エレベーター |
| 更新料 | 0ヶ月 | 更新日 | 2025年09月11日 |
| 備考 | |||
| その他費用 | ・保証会社加入要 | ||



お問い合わせの際は、「部屋No.50114」とお伝えください。





























1978年竣工、茶色の外壁の外観の建物。低層階まわりは石張りになっていて高級感があります。
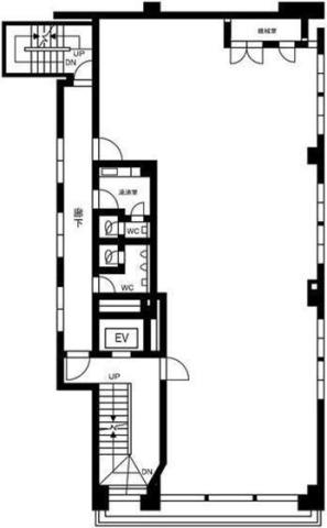
基準となるオフィスは1フロア約56坪、EV1基、共用部に男女別のトイレと給湯室があり、貸室内は効率よくレイアウトすることが可能です。セキュリティは機械警備を導入しています。
昭和通りから少し入った場所に立地しており、周辺はお店は少ないものの大通り沿いには多数の飲食店がありますので利便性も良好です。