推奨利用人数
9人~10人
【成約済み】VORT内神田(旧称:内神田STビル) 7階
- 所在地:東京都千代田区内神田3丁目24番3号
- 交通:東京メトロ銀座線「神田」駅徒歩3分
- 交通2:都営新宿線「小川町」駅徒歩5分
- 交通3:東京メトロ丸の内線「淡路町」駅徒歩5分
| 賃料:-- (税別) | 管理費:56,069円 (税別) |
| 敷金:6ヶ月- | 礼金:0ヶ月 |
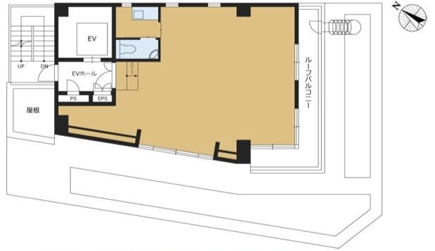
| 面積:61.79m² | 所在階:地上7階 |
| 間取り:事務所 | 築年月:1988年03月 |
| 賃料/管理費 | -- (税別)/56,069円 (税別) | フリーレント | 0ヶ月 |
|---|---|---|---|
| 敷金/礼金 | 6ヶ月/0ヶ月 | 内見・入居 | 相談 |
| 間取り | 事務所 | 面積 | 61.79m² |
| 所在階 | 地上7階 | 最大スペース | |
| 住所 | 東京都千代田区内神田3丁目24番3号 | 最寄駅 | 東京メトロ銀座線「神田」駅徒歩3分 都営新宿線「小川町」駅徒歩5分 東京メトロ丸の内線「淡路町」駅徒歩5分 |
| その他交通 | 築年月 | 1988年03月 | |
| 方角 | 構造 | 鉄骨鉄筋コンクリート造(SRC造) 7階建 | |
| 契約期間 | 3年間 | 契約形態 | 定期借家 |
| 償却 | 0ヶ月 | 設備 | エレベーター , OAフロア |
| 更新料 | 更新日 | 2025年09月11日 | |
| 備考 | ・エントランス開放時間:7:00?19:00(終日) | ||



お問い合わせの際は、「部屋No.50116」とお伝えください。





























グレーのパネル張り、シックな佇まいが特徴の落ち着いた雰囲気のビル。
新耐震にも適合しています。