推奨利用人数
9人~10人
【成約済み】内幸町企画ビル 7階
- 所在地:東京都港区西新橋1丁目15番6号
- 交通:都営三田線「内幸町」駅徒歩1分
- 交通2:JR山手線「新橋」駅徒歩4分
- 交通3:東京メトロ銀座線「虎ノ門」駅徒歩6分
| 賃料:-- (税別) | 管理費:49,680円 (税別) |
| 敷金:8ヶ月- | 礼金:0ヶ月 |
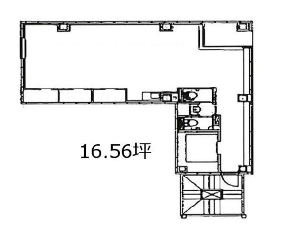
| 面積:54.74m² | 所在階:地上7階 |
| 間取り:事務所 | 築年月:2011年12月 |
| 賃料/管理費 | -- (税別)/49,680円 (税別) | フリーレント | 0ヶ月 |
|---|---|---|---|
| 敷金/礼金 | 8ヶ月/0ヶ月 | 内見・入居 | 内見可 |
| 間取り | 事務所 | 面積 | 54.74m² |
| 所在階 | 地上7階 | 最大スペース | |
| 住所 | 東京都港区西新橋1丁目15番6号 | 最寄駅 | 都営三田線「内幸町」駅徒歩1分 JR山手線「新橋」駅徒歩4分 東京メトロ銀座線「虎ノ門」駅徒歩6分 |
| その他交通 | 築年月 | 2011年12月 | |
| 方角 | 構造 | 鉄骨構造(S造) 9階建 | |
| 契約期間 | 2年間 | 契約形態 | |
| 償却 | 2ヶ月 | 設備 | エレベーター , OAフロア |
| 更新料 | 1ヶ月 | 更新日 | 2025年09月11日 |
| 備考 | |||



お問い合わせの際は、「部屋No.50144」とお伝えください。





























都営三田線「内幸町駅」A3出口より徒歩1分、そのほかにも複数の駅・路線が利用可能な好立地オフィスです!
2011年竣工、ガラス張りの外観のスタイリッシュなデザインの建物で、新耐震基準をクリアしています。
日比谷通り沿いに面し、視認性の高いオフィスです。周辺は飲食店や銀行などがあり、賑やかなエリアに立地しています。
1フロア1テナント利用のオフィスは、断固別のトイレと給湯設備が室内にあり使い勝手も良好です。ビル設備としては、
各階個別空調 オートロック 24時間使用可能! エレベーターは6人乗り、各階不停止制御OK!
天井高2.6メートルの開放感のあるオフィス空間です。