推奨利用人数
11人~12人
【成約済み】東神田藤井ビル 5階
- 所在地:東京都千代田区東神田1丁目11番4号
- 交通:都営新宿線「岩本町」駅徒歩4分
- 交通2:都営浅草線「東日本橋」駅徒歩4分
- 交通3:JR山手線「秋葉原」駅徒歩10分
| 賃料:-- (税別) | 管理費:0円 (税別) |
| 敷金:8ヶ月- | 礼金:0ヶ月 |
| 面積:72.2m² | 所在階:地上5階 |
| 間取り:事務所 | 築年月:1991年06月 |
| 賃料/管理費 | -- (税別)/0円 (税別) | フリーレント | 0ヶ月 |
|---|---|---|---|
| 敷金/礼金 | 8ヶ月/0ヶ月 | 内見・入居 | 相談 |
| 間取り | 事務所 | 面積 | 72.2m² |
| 所在階 | 地上5階 | 最大スペース | |
| 住所 | 東京都千代田区東神田1丁目11番4号 | 最寄駅 | 都営新宿線「岩本町」駅徒歩4分 都営浅草線「東日本橋」駅徒歩4分 JR山手線「秋葉原」駅徒歩10分 |
| その他交通 | 東京メトロ日比谷線「小伝馬町」駅9分 | 築年月 | 1991年06月 |
| 方角 | 構造 | 鉄骨構造(S造) 10階建 | |
| 契約期間 | 2年間 | 契約形態 | 普通借家 |
| 償却 | 2ヶ月 | 設備 | エレベーター |
| 更新料 | 1ヶ月 | 更新日 | 2025年09月11日 |
| 備考 | |||
| その他費用 | ・保証会社加入必須 | ||



お問い合わせの際は、「部屋No.50178」とお伝えください。





























1991年竣工、ベージュのパネル張りの外壁に赤い窓枠がアクセントになっています。新耐震基準をクリアしています。
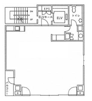
基準となるフロアは1フロア約22坪、ほぼ正方形の貸室内に専用の給湯室とトイレがあり使い勝手も良好です。
セキュリティは機械警備を完備していますので、安心して24時間後利用可能です。
岩本町駅から徒歩6分 秋葉原駅へも徒歩10分!複数の路線が利用可能ですのでアクセスの良いオフィスです!