推奨利用人数
25人~29人
【成約済み】相鉄岩本町ビル(旧:フォレスト秋葉原ビル) 8階
- 所在地:東京都千代田区岩本町3丁目9番3号
- 交通:都営新宿線「岩本町」駅徒歩2分
- 交通2:JR山手線「秋葉原」駅徒歩5分
- 交通3:東京メトロ銀座線「神田」駅徒歩10分
| 賃料:相談 (税別) | 管理費:相談 (税別) |
| 敷金:12ヶ月- | 礼金:0ヶ月 |
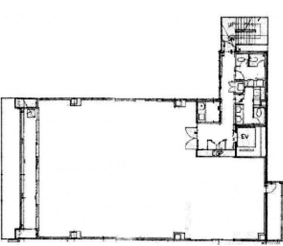
| 面積:184.89m² | 所在階:地上8階 |
| 間取り:事務所 | 築年月:1993年06月 |
| 賃料/管理費 | 相談 (税別)/相談 (税別) | フリーレント | 0ヶ月 |
|---|---|---|---|
| 敷金/礼金 | 12ヶ月/0ヶ月 | 内見・入居 | 内見可 |
| 間取り | 事務所 | 面積 | 184.89m² |
| 所在階 | 地上8階 | 最大スペース | |
| 住所 | 東京都千代田区岩本町3丁目9番3号 | 最寄駅 | 都営新宿線「岩本町」駅徒歩2分 JR山手線「秋葉原」駅徒歩5分 東京メトロ銀座線「神田」駅徒歩10分 |
| その他交通 | JR総武本線「馬喰町」駅10分 | 築年月 | 1993年06月 |
| 方角 | 構造 | 鉄骨鉄筋コンクリート造(SRC造) 8階建 | |
| 契約期間 | その他 | 契約形態 | |
| 償却 | 0ヶ月 | 設備 | エレベーター , OAフロア |
| 更新料 | 更新日 | 2025年09月11日 | |
| 備考 |
・エントランス開放時間:平日 7:30-21:30 土日祝 閉 上記時間帯以外はセキュリティカード利用により24時間入退館可能 |
||



お問い合わせの際は、「部屋No.50200」とお伝えください。





























1993年竣工、グレーの石張りの重厚な外観の建物です。新耐震基準をクリアしています。
基準となるフロアは約59坪、EVホールに男女別のトイレと給湯室があり、余計な柱のないオフィス空間はレイアウト効率も良好!OA床や光ファイバー、個別空調完備、セキュリティは機械警備を導入し安心してご利用頂けます。
2014年にエントランスをフルリニューアル済み。白を基調とした清潔感のある空間へと生まれ変わり来客者の印象も良いです。
靖国通りから少し入った場所に立地、周辺にはコンビニや飲食店、金融機関なども多くあり利便性も良好です。JR秋葉原駅へも徒歩5分ほどで利用することができますのでアクセスも良好です!