推奨利用人数
20人~24人
【成約済み】日本橋BSビル 3階
- 所在地:東京都中央区日本橋富沢町10番14号
- 交通:東京メトロ日比谷線「人形町」駅徒歩4分
- 交通2:都営新宿線「馬喰横山」駅徒歩5分
- 交通3:都営浅草線「東日本橋」駅徒歩5分
| 賃料:-- (税別) | 管理費:0円 (税別) |
| 敷金:10ヶ月- | 礼金:0ヶ月 |
| 面積:142.15m² | 所在階:地上3階 |
| 間取り:事務所 | 築年月:1994年03月 |
| 賃料/管理費 | -- (税別)/0円 (税別) | フリーレント | 0ヶ月 |
|---|---|---|---|
| 敷金/礼金 | 10ヶ月/0ヶ月 | 内見・入居 | 相談 |
| 間取り | 事務所 | 面積 | 142.15m² |
| 所在階 | 地上3階 | 最大スペース | |
| 住所 | 東京都中央区日本橋富沢町10番14号 | 最寄駅 | 東京メトロ日比谷線「人形町」駅徒歩4分 都営新宿線「馬喰横山」駅徒歩5分 都営浅草線「東日本橋」駅徒歩5分 |
| その他交通 | 築年月 | 1994年03月 | |
| 方角 | 構造 | 鉄骨構造(S造) 8階建 | |
| 契約期間 | 応相談 | 契約形態 | 普通借家 |
| 償却 | 0ヶ月 | 設備 | エレベーター , OAフロア |
| 更新料 | 更新日 | 2025年09月11日 | |
| 備考 | |||
| その他費用 | ・保証会社加入必須 保証会社未加入の場合、敷金:12ヶ月 |
||



お問い合わせの際は、「部屋No.50202」とお伝えください。





























1994年竣工、シルバーのパネル張りの外観に黄色と赤のアクセントがおしゃれな外観の建物です。新耐震基準をクリアしています。
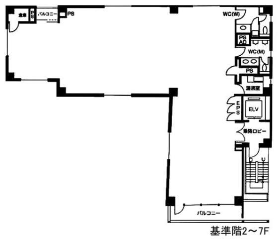
基準となるフロアは1フロア約68坪、L字型の形状、室内には男女別のトイレと余裕のある給湯スペース完備。大きなバルコニーもあります。セキュリティは機械警備システムを導入しています。
周辺はオフィスビル以外にも、飲食店も多くランチにも便利。最寄の人形町駅のほか、小伝馬町駅や東日本橋駅、馬喰横山駅なども利用できますので交通アクセスも良好です。