推奨利用人数
25人~29人
【成約済み】四谷三栄町スクエア(旧称:太田ビル) 5階
- 所在地:東京都新宿区四谷三栄町9番6号
- 交通:東京メトロ丸の内線「四谷三丁目」駅徒歩4分
- 交通2:都営新宿線「曙橋」駅徒歩7分
- 交通3:JR中央線「四ツ谷」駅徒歩9分
| 賃料:-- (税別) | 管理費:0円 (税別) |
| 敷金:6ヶ月- | 礼金:0ヶ月 |
| 面積:191.34m² | 所在階:地上5階 |
| 間取り:事務所 | 築年月:1988年02月 |
| 賃料/管理費 | -- (税別)/0円 (税別) | フリーレント | 0ヶ月 |
|---|---|---|---|
| 敷金/礼金 | 6ヶ月/0ヶ月 | 内見・入居 | 内見可 |
| 間取り | 事務所 | 面積 | 191.34m² |
| 所在階 | 地上5階 | 最大スペース | |
| 住所 | 東京都新宿区四谷三栄町9番6号 | 最寄駅 | 東京メトロ丸の内線「四谷三丁目」駅徒歩4分 都営新宿線「曙橋」駅徒歩7分 JR中央線「四ツ谷」駅徒歩9分 |
| その他交通 | 築年月 | 1988年02月 | |
| 方角 | 構造 | 鉄筋コンクリート造(RC造) 6階建 | |
| 契約期間 | 2年間 | 契約形態 | 普通借家 |
| 償却 | 0ヶ月 | 設備 | エレベーター , OAフロア |
| 更新料 | 0ヶ月 | 更新日 | 2025年09月11日 |
| 備考 | |||
| その他費用 | ・指定保証会社加入必須 | ||



お問い合わせの際は、「部屋No.50214」とお伝えください。





























1988年竣工、クリーム色のタイル張りの外観の建物です。新耐震基準をクリアしています。
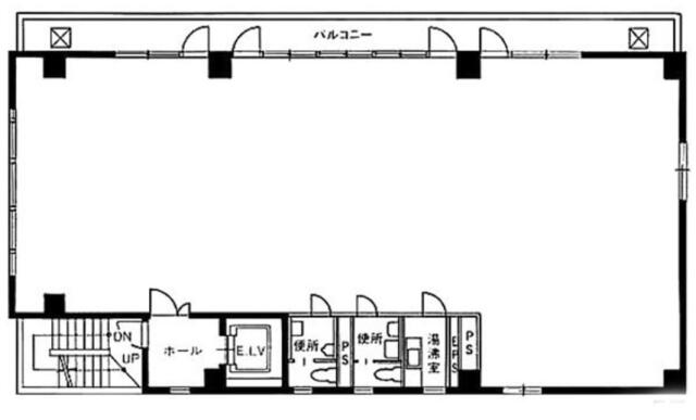
基準となるフロアは1フロア約61坪。EV1基、室内に男女別のトイレと給湯室があり使い勝手も良好です。
新宿通りから「津之守坂入口交差点」を少し入った場所に立地しており、周辺は比較的穏やかな環境です。新宿通りまで出れば、コンビニや飲食店も多く利便性も良好です。複数の路線が利用可能な四ッ谷駅までも徒歩9分で利用可能ですので、都内各所へのアクセスにも便利な立地です。