推奨利用人数
25人~29人
【成約済み】西池本田ビル 2階
- 所在地:東京都豊島区西池袋3丁目30番3号
- 交通:JR山手線「池袋」駅徒歩4分
- 交通2:東京メトロ副都心線「要町」駅徒歩12分
- 交通3:―
| 賃料:-- (税別) | 管理費:196,385円 (税別) |
| 敷金:12ヶ月- | 礼金:0ヶ月 |
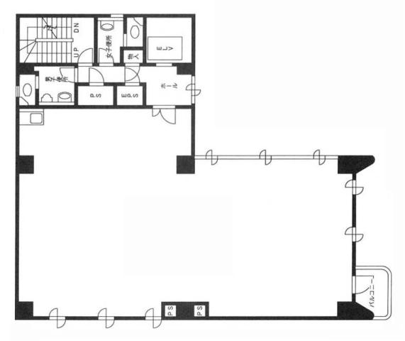
| 面積:185.49m² | 所在階:地上2階 |
| 間取り:事務所 | 築年月:1988年08月 |
| 賃料/管理費 | -- (税別)/196,385円 (税別) | フリーレント | 0ヶ月 |
|---|---|---|---|
| 敷金/礼金 | 12ヶ月/0ヶ月 | 内見・入居 | 内見可 |
| 間取り | 事務所 | 面積 | 185.49m² |
| 所在階 | 地上2階 | 最大スペース | |
| 住所 | 東京都豊島区西池袋3丁目30番3号 | 最寄駅 | JR山手線「池袋」駅徒歩4分 東京メトロ副都心線「要町」駅徒歩12分 ― |
| その他交通 | 築年月 | 1988年08月 | |
| 方角 | 構造 | 鉄骨鉄筋コンクリート造(SRC造) 8階建 | |
| 契約期間 | 2年間 | 契約形態 | 普通借家 |
| 償却 | 10% | 設備 | エレベーター , OAフロア |
| 更新料 | 1ヶ月 | 更新日 | 2025年09月11日 |
| 備考 | |||



お問い合わせの際は、「部屋No.50219」とお伝えください。





























1988年竣工、白いタイル張りの外観の建物です。新耐震基準をクリアしています。
基準となるフロアは1フロア約60坪。EVホールに男女別のトイレと給湯室があり貸室内には余計な柱もありませんので効率よくレイアウトすることが可能です。
「池袋マルイ」の裏手に立地、周辺には飲食店や商業店舗が並びランチ環境も充実しています。