推奨利用人数
1人~2人
【成約済み】ザパークハビオ神楽坂香月 706号室
- 所在地:東京都新宿区水道町4番5号
- 交通:東京メトロ有楽町線「江戸川橋」駅徒歩4分
- 交通2:東京メトロ東西線「神楽坂」駅徒歩6分
- 交通3:JR中央・総武線「飯田橋」駅徒歩13分
| 賃料:-- | 管理費:10,000円 |
| 敷金:2ヶ月- | 礼金:1ヶ月 |
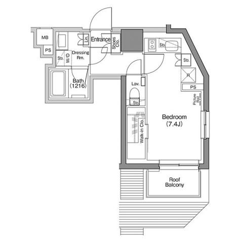
| 面積:25.67m² | 所在階:地上7階 |
| 間取り:1R | 築年月:2019年05月 |
| 賃料/管理費 | --/10,000円 | フリーレント | 0ヶ月 |
|---|---|---|---|
| 敷金/礼金 | 2ヶ月/1ヶ月 | 内見・入居 | |
| 間取り | 1R | 面積 | 25.67m² |
| 所在階 | 地上7階 | 最大スペース | |
| 住所 | 東京都新宿区水道町4番5号 | 最寄駅 | 東京メトロ有楽町線「江戸川橋」駅徒歩4分 東京メトロ東西線「神楽坂」駅徒歩6分 JR中央・総武線「飯田橋」駅徒歩13分 |
| その他交通 | 築年月 | 2019年05月 | |
| 方角 | 構造 | 鉄筋コンクリート造(RC造) 8階建 | |
| 契約期間 | 2年間 | 契約形態 | 普通借家 |
| 償却 | 0ヶ月 | 設備 | エレベーター |
| 更新料 | 1ヶ月 | 更新日 | 2025年09月11日 |
| 備考 | |||



お問い合わせの際は、「部屋No.50278」とお伝えください。





























近隣には郵便局やスーパー、コンビニがあり便利な環境
宅配ボックスがあり荷物の受け取りも便利です
ペット飼育、楽器演奏の相談もできます(諸条件要確認)