推奨利用人数
25人~29人
【成約済み】ヒューリック広尾ビル(旧称:ORE広尾ビル) 6階
- 所在地:東京都港区南麻布5丁目10番26号
- 交通:東京メトロ日比谷線「広尾」駅徒歩1分
- 交通2:都営大江戸線「六本木」駅徒歩19分
- 交通3:―
| 賃料:相談 (税別) | 管理費:相談 (税別) |
| 敷金:相談- | 礼金:0ヶ月 |
| 面積:181.62m² | 所在階:地上6階 |
| 間取り:事務所 | 築年月:2009年02月 |
| 賃料/管理費 | 相談 (税別)/相談 (税別) | フリーレント | 0ヶ月 |
|---|---|---|---|
| 敷金/礼金 | 相談/0ヶ月 | 内見・入居 | 相談 |
| 間取り | 事務所 | 面積 | 181.62m² |
| 所在階 | 地上6階 | 最大スペース | |
| 住所 | 東京都港区南麻布5丁目10番26号 | 最寄駅 | 東京メトロ日比谷線「広尾」駅徒歩1分 都営大江戸線「六本木」駅徒歩19分 ― |
| その他交通 | 築年月 | 2009年02月 | |
| 方角 | 構造 | 鉄骨構造(S造) 7階建 | |
| 契約期間 | その他 | 契約形態 | |
| 償却 | 0ヶ月 | 設備 | エレベーター , OAフロア |
| 更新料 | 0ヶ月 | 更新日 | 2025年09月11日 |
| 備考 |
・正面入口: 平日土日祝日 8:00-21:00 開 上記時間帯以外はセキュリティカード操作にて入館可能 ・1階にユニバーサルトイレ有 |
||
| その他費用 | ・テナント看板契約料:月額10,000円 | ||



お問い合わせの際は、「部屋No.50345」とお伝えください。





























2009年竣工、美しいガラスカーテンウォールの視認性の高いオフィスです。新耐震基準をクリアしています。
外苑西通り沿いに立地し、1階にはコンビニが入居していますので目印になります。
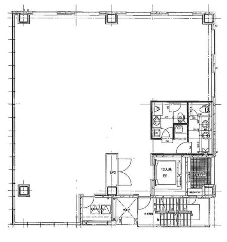
1フロア1テナント利用、男女別のトイレと給湯設備が阿智使い勝手も良好。室内には余計な柱もございませんので、レイアウトしやすい間取りです。天井高2.7m超、窓が多く開放的なオフィス空間です。セキュリティは機械警備を導入。
広尾は洗練されたおしゃれな街。周辺には飲食店も多く利便性も良好です。