推奨利用人数
9人~10人
【成約済み】佑昌ビル 7階
- 所在地:東京都中央区日本橋茅場町2丁目7番2号
- 交通:東京メトロ日比谷線「茅場町」駅徒歩1分
- 交通2:東京メトロ銀座線「日本橋」駅徒歩5分
- 交通3:都営浅草線「人形町」駅徒歩13分
| 賃料:-- (税別) | 管理費:0円 (税別) |
| 敷金:8ヶ月- | 礼金:0ヶ月 |
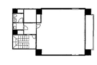
| 面積:56.24m² | 所在階:地上7階 |
| 間取り:事務所 | 築年月:1987年02月 |
| 賃料/管理費 | -- (税別)/0円 (税別) | フリーレント | 0ヶ月 |
|---|---|---|---|
| 敷金/礼金 | 8ヶ月/0ヶ月 | 内見・入居 | 相談 |
| 間取り | 事務所 | 面積 | 56.24m² |
| 所在階 | 地上7階 | 最大スペース | |
| 住所 | 東京都中央区日本橋茅場町2丁目7番2号 | 最寄駅 | 東京メトロ日比谷線「茅場町」駅徒歩1分 東京メトロ銀座線「日本橋」駅徒歩5分 都営浅草線「人形町」駅徒歩13分 |
| その他交通 | 築年月 | 1987年02月 | |
| 方角 | 構造 | 鉄筋コンクリート造(RC造) 7階建 | |
| 契約期間 | 2年間 | 契約形態 | 普通借家 |
| 償却 | 2ヶ月 | 設備 | エレベーター |
| 更新料 | 0ヶ月 | 更新日 | 2025年09月11日 |
| 備考 | |||
| その他費用 | ・保証会社加入で敷金相談 | ||



お問い合わせの際は、「部屋No.50428」とお伝えください。





























1987年竣工のオフィスビル、2017年6月大規模リニューアルを実施しました。新耐震基準をクリアした建物です。
シンプルなグレーの吹きつけの外観、1フロア1テナント利用のオフィスには、専用のトイレと給湯設備があり
OA床・個別空調など設備面も充実しています。
機械警備完備でセキュリティ面も安心です。
周辺は駅前エリアのため、飲食店やコンビニなど多く利便性も良好です。