推奨利用人数
5人~6人
【成約済み】金子ビル(新橋5) 1階
- 所在地:東京都港区新橋5丁目4番7号
- 交通:都営三田線「御成門」駅徒歩5分
- 交通2:JR山手線「新橋」駅徒歩7分
- 交通3:都営大江戸線「汐留」駅徒歩9分
| 賃料:-- (税別) | 管理費:18,240円 (税別) |
| 敷金:6ヶ月- | 礼金:0ヶ月 |
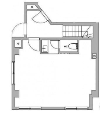
| 面積:30.17m² | 所在階:地上1階 |
| 間取り:事務所 | 築年月:2019年02月 |
| 賃料/管理費 | -- (税別)/18,240円 (税別) | フリーレント | 0ヶ月 |
|---|---|---|---|
| 敷金/礼金 | 6ヶ月/0ヶ月 | 内見・入居 | 内見可 |
| 間取り | 事務所 | 面積 | 30.17m² |
| 所在階 | 地上1階 | 最大スペース | |
| 住所 | 東京都港区新橋5丁目4番7号 | 最寄駅 | 都営三田線「御成門」駅徒歩5分 JR山手線「新橋」駅徒歩7分 都営大江戸線「汐留」駅徒歩9分 |
| その他交通 | 都営大江戸線「汐留」駅徒歩9分 | 築年月 | 2019年02月 |
| 方角 | 構造 | 鉄骨構造(S造) 4階建 | |
| 契約期間 | 2年間 | 契約形態 | 普通借家 |
| 償却 | 2ヶ月 | 設備 | OAフロア |
| 更新料 | 1ヶ月 | 更新日 | 2025年09月11日 |
| 備考 | |||



お問い合わせの際は、「部屋No.50435」とお伝えください。





























地上4階建て、白いタイル張りの外観の建物です。新耐震基準をクリアしています。
1フロア約11坪のコンパクトなオフィス。室内に専用のトイレとミニキッチンがあり使い勝手も良好です。セキュリティは機械警備を完備していますので安心して24時間後利用頂けます。
日比谷通りから少し入った場所に立地、周辺は比較的落ち着いたオフィス街です。