推奨利用人数
13人~14人
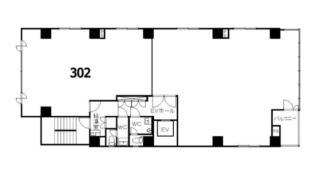
【成約済み】MYSビル 302号室
- 所在地:東京都墨田区両国4丁目8番10号
- 交通:JR中央・総武線「両国」駅徒歩6分
- 交通2:都営新宿線「森下」駅徒歩8分
- 交通3:都営浅草線「東日本橋」駅徒歩16分
| 賃料:-- (税別) | 管理費:93,100円 (税別) |
| 敷金:6ヶ月- | 礼金:0ヶ月 |
| 面積:87.92m² | 所在階:地上3階 |
| 間取り:事務所 | 築年月:1993年06月 |
| 賃料/管理費 | -- (税別)/93,100円 (税別) | フリーレント | 0ヶ月 |
|---|---|---|---|
| 敷金/礼金 | 6ヶ月/0ヶ月 | 内見・入居 | 相談 |
| 間取り | 事務所 | 面積 | 87.92m² |
| 所在階 | 地上3階 | 最大スペース | |
| 住所 | 東京都墨田区両国4丁目8番10号 | 最寄駅 | JR中央・総武線「両国」駅徒歩6分 都営新宿線「森下」駅徒歩8分 都営浅草線「東日本橋」駅徒歩16分 |
| その他交通 | 築年月 | 1993年06月 | |
| 方角 | 構造 | 鉄筋コンクリート造(RC造) 6階建 | |
| 契約期間 | 2年間 | 契約形態 | 普通借家 |
| 償却 | 2ヶ月 | 設備 | エレベーター , OAフロア |
| 更新料 | 1ヶ月 | 更新日 | 2025年09月11日 |
| 備考 | |||
| その他費用 | ・専用部分清掃:別途負担 | ||



お問い合わせの際は、「部屋No.50444」とお伝えください。





























6階建ての新耐震基準オフィスビル
エントランスは黒御影で重厚感と高級感のある雰囲気です
24時間機械警備、個別空調、光ケーブル、OAフロア