推奨利用人数
13人~14人
【成約済み】NISSEI SHINJUKU Bldg 3階
- 所在地:東京都新宿区新宿6丁目10番1号
- 交通:東京メトロ副都心線「新宿三丁目」駅徒歩3分
- 交通2:都営大江戸線「東新宿」駅徒歩7分
- 交通3:JR山手線「新宿」駅徒歩10分
| 賃料:-- (税別) | 管理費:0円 (税別) |
| 敷金:8ヶ月- | 礼金:1ヶ月 |
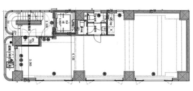
| 面積:80.63m² | 所在階:地上3階 |
| 間取り:事務所 | 築年月:2019年03月 |
| 賃料/管理費 | -- (税別)/0円 (税別) | フリーレント | 0ヶ月 |
|---|---|---|---|
| 敷金/礼金 | 8ヶ月/1ヶ月 | 内見・入居 | 相談 |
| 間取り | 事務所 | 面積 | 80.63m² |
| 所在階 | 地上3階 | 最大スペース | |
| 住所 | 東京都新宿区新宿6丁目10番1号 | 最寄駅 | 東京メトロ副都心線「新宿三丁目」駅徒歩3分 都営大江戸線「東新宿」駅徒歩7分 JR山手線「新宿」駅徒歩10分 |
| その他交通 | 築年月 | 2019年03月 | |
| 方角 | 構造 | 鉄筋コンクリート造(RC造) 6階建 | |
| 契約期間 | 3年間 | 契約形態 | 普通借家 |
| 償却 | 1ヶ月 | 設備 | エレベーター , OAフロア |
| 更新料 | 1ヶ月 | 更新日 | 2025年09月11日 |
| 備考 | |||
| その他費用 | ・保証会社加入必須 | ||



お問い合わせの際は、「部屋No.50447」とお伝えください。





























東京医大通り沿いに建つ6階建ての賃貸オフィスビル
2階以上は事務所仕上げです
人気の1フロア1テナント、男女別トイレ、OAフロア、個別空調